Privat & provisionsfrei: Wohnungen aus Portalen, Kleinanzeigen & Social Media kombiniert


Das inserieren direkt auf Flatbee ist immer 100% kostenlos

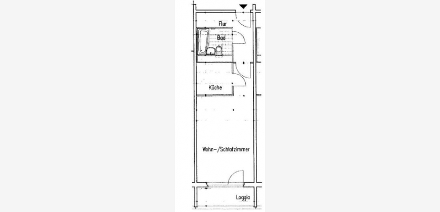
Wohnung - Berlin - 12629 - 35 m2   premium_badge
Dies ist ein Flatbee Plus+ Inserat
premium_badge

Kaltmiete € 300

Warmmiete (Kaltmiete + NK) € 365

Preis-Barometer: -43% günstiger als ähnliche Immobilien in gleicher Lage

-43%

Gemütlich und ruhig - Ideale Single-Wohnung sucht passenden Gefährten


Beschreibung

1 Zimmer Wohnung sucht Mieter! Balkon - PVC Bodenbelag - modern gefliestes Wannenbad - Küche ohne Fenster mit Einbauküche - Spülmaschinen - und Waschmaschinenanschluss - Kabelanschluss - Aufzug - Keller - Zusätzliche Merkmale: Bad ohne Fenster, Fernwärme, Küche ohne Fenster Die Mitte der 80iger Jahre entstandenen Wohnhäuser befinden sich in einem gepflegten Zustand. Die aufgelockerte Bebauung mit zahlreichen Grünflächen und liebevoll gestalteten Innenhöfen vermitteln eine hohe Aufenthalts - und Wohnqualität. Ausreichend Stellplätze sind in der nahen Umgebung vorhanden. Die Wohnung wird über eine zentrale Heizungsanlage versorgt, in der Miete ist der Grundbeitrag für das Kabelfernsehen bereits enthalten