Privat & provisionsfrei: Wohnungen aus Portalen, Kleinanzeigen & Social Media kombiniert


Das inserieren direkt auf Flatbee ist immer 100% kostenlos

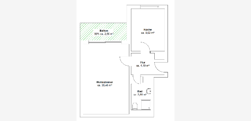
Wohnung - 68161 Mannheim – Baden-Württemberg - 40 m2  

Kaltmiete € 632

von Flatbee vor 1 Tag gefunden | vor 6 Stunden auf Aktivität geprüft

Preis-Barometer:

0%

premium_badge
Dies ist ein Flatbee Plus+ Inserat
premium_badge

Geräumige Einzimmerwohnung mit Balkon zentral in Mannheim


Beschreibung

Zur Wohnung gehört eine neue Küche mit Elektrogeräten, inkl. Waschmaschine.

Die Wohnung liegt in dem Mannheimer N5-Quadrat zwischen zwei kleinen Parks (dem Scipiogarten direkt nebenan und dem Lauergarten gegenüber). Die Kapuzinerplanken sind lediglich 100 Meter entfernt. Genau so liegen in unmittelbarer Nähe:


REWE 450 Meter
Apotheke 400 Meter
Straßenbahnhaltestelle Strohmarkt 220 Meter
Uni MA 600 Meter

Ich freue mich über Ihre Nachrichten mit einer persönlichen Vorstellung.

PROVISIONSFREI