Privat & provisionsfrei: Wohnungen aus Portalen, Kleinanzeigen & Social Media kombiniert


Das inserieren direkt auf Flatbee ist immer 100% kostenlos

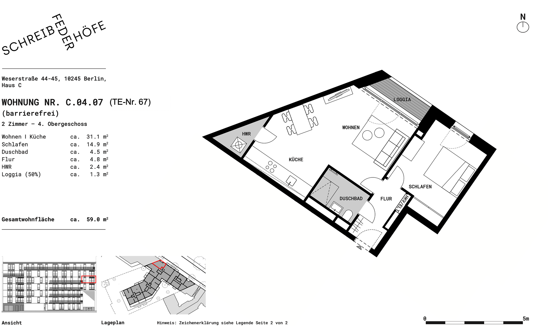
Wohnung - Weserstr 44, 10245 Berlin (Friedrichshain) - 0 m2  

Kaltmiete € 1590

von Flatbee vor 1 Tag gefunden | vor 4 Stunden auf Aktivität geprüft

Preis-Barometer:

0%

premium_badge
Dies ist ein Flatbee Plus+ Inserat
premium_badge

Hochwertige 2-Raum in Fhain mit Loggia; neubau & möbliert - Wohnung - Berlin


Beschreibung

Das Objekt finden Sie in lebendiger Gegend in Berlin Friedrichshain. Mehrere Bus- und Tramlinien und S-Bahnlinien erreichen Sie in wenigen Minuten. Einige Bahnlinien verkehren ganz in der Nähe. In Laufnähe gibt es mehrere Restaurants, Cafés, Ärzte, Bäckereien und Einkaufszentren. Verschiedene Bars, Fitnessstudios, Grün- und Parkanlagen, Modegeschäfte und Buchhandlungen finden Sie ebenfalls vor Ort.

PROVISIONSFREI