Privat & provisionsfrei: Wohnungen aus Portalen, Kleinanzeigen & Social Media kombiniert


Das inserieren direkt auf Flatbee ist immer 100% kostenlos

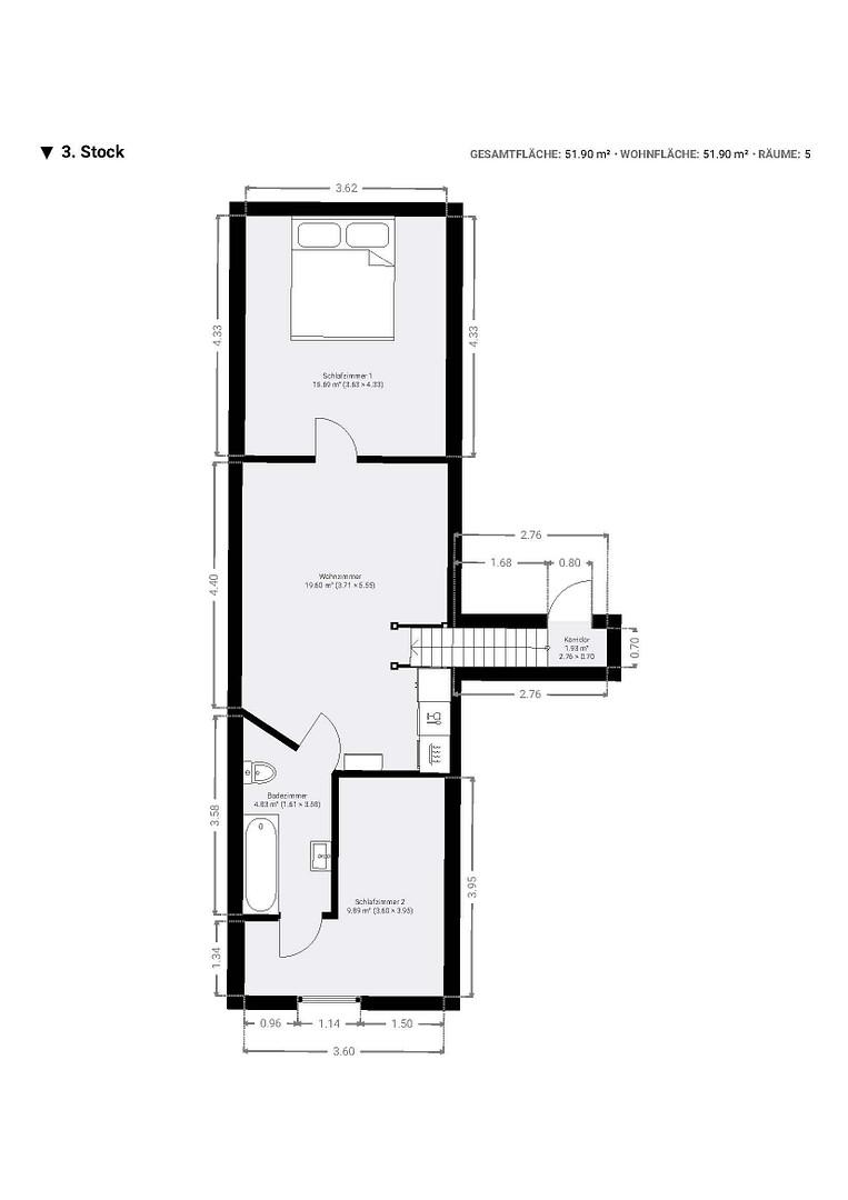
Wohnung - Schloßstraße 40, 74831 Gundelsheim – Baden-Württemberg - 51 m2  

Kaltmiete € 540

von Flatbee vor 1 Tag gefunden | vor 6 Stunden auf Aktivität geprüft

Preis-Barometer: +18% teurer als ähnliche Immobilien in gleicher Lage

+18%

premium_badge
Dies ist ein Flatbee Plus+ Inserat
premium_badge

Teilmöblierte, renovierte 3-Zimmer-Wohnung - zentrale Altstadtlage in Gundelsheim mit EBK


Beschreibung

Die Wohnung bietet folgende Ausstattung:


- Teilmöblierung (Bett, Sofa) Bei Bedarf auch eine komplette Möblierung möglich
- Wohnzimmer
- 2 Schlafzimmer
- 1 Badezimmer mit Waschmaschinenanschluss
- Einbauküche mit Kühlschrank, Backofen, Kühlschrank, Herd
- neue Infrarotheizkörper in der gesamten Wohnung
- Kellerabteil

Die Wohnung befindet sich in zentraler und zugleich ruhiger Lage von Gundelsheim, nur wenige Schritte vom historischen Stadtkern entfernt. Die Schlossstraße zählt zu den gefragten Wohnlagen der Stadt – geprägt von gepflegten Wohnhäusern, kurzen Wegen und einer angenehmen Nachbarschaft.


Der tägliche Bedarf ist bequem zu Fuß erreichbar: Supermärkte, Bäckereien, Apotheke, Banken sowie verschiedene Dienstleister liegen im direkten Umfeld. Die Stadtbahnlinie S41/S42 ist nur wenige Gehminuten entfernt und bietet eine hervorragende Anbindung nach Heilbronn, Mosbach und Sinsheim – ideal für Pendler.


Gundelsheim selbst überzeugt durch seinen charmanten Altstadtkern, das imposante Deutschordenschloss, die Nähe zum Neckar sowie zahlreiche Rad- und Spazierwege. Auch gastronomische Angebote, Schulen und Kindergärten sind schnell erreichbar.

Schreiben Sie gerne ein paar Worte über sich, die Wohnung ist ab dem 15.12.2025 beziehbar.

PROVISIONSFREI