Privat & provisionsfrei: Wohnungen aus Portalen, Kleinanzeigen & Social Media kombiniert


Das inserieren direkt auf Flatbee ist immer 100% kostenlos

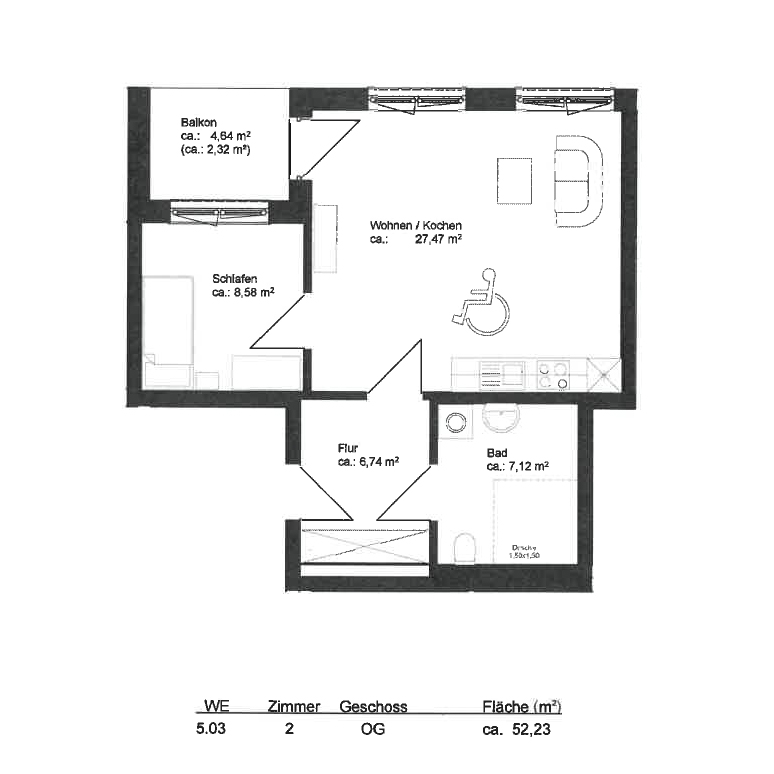
Wohnung - Schöneiche bei Berlin - 15566 - 52 m2   premium_badge
Dies ist ein Flatbee Plus+ Inserat
premium_badge

Kaltmiete € 899

Warmmiete (Kaltmiete + NK) € 1074
Vor 10 Stunden aktualisiert

Preis-Barometer:

0%

Barrierefrei - sofort einziehen! Helle, moderne 2-Zimmer-Wohnung mit Südbalkon in Schöneiche


Beschreibung

"Wohnen an der Dorfaue" In fünf Häusern entstanden hier 2017 direkt im Ortszentrum 76 barrierefreie Wohnungen. Sie sind über Aufzüge erreichbar und somit auch für Ältere und Bewohner mit Handicap interessant. Die angebotene 2-Zimmer-Wohnung im 1. Obergeschoss bietet Ihnen auf ca. 52 m² durchdacht gestalteten Wohnraum für Ihre individuellen Einrichtungs- und Gestaltungswünsche. Mietern stehen hier, bei Bedarf, Betreuungs- und Serviceangebote einer Tagespflegestätte zur Verfügung, die sich direkt im Gebäude befindet.Betreten Sie das Objekt, empfängt Sie ein Flur mit ausreichend Platz für eine Garderobe. Geradezu finden Sie das großzügige Duschbad mit Platz für eine Waschmaschine. Links im Eingangsbereich befindet sich der Zugang zur hellen, offenen Wohnküche mit ca. 27 m². Zwei Fenster sowie der Zugang zum Südbalkon sorgen für lichtdurchfluteten Wohnraum. Zur linken finden Sie das Schlafzimmer mit Sicht auf den Balkon. Die moderne Fußbodenheizung gehört ebenso zum objektinternen Standard wie elektrisch betriebene Jalousien an jedem Fenster. Der Anschluss an das Breitband-Kabelnetz von Vodafone-Kabel Deutschland ist vorhanden. Ein Trockenraum für Wäsche und ein Fahrradraum, der auch genutzt werden kann, um Mobilitätshilfen aufzubewahren, werden gemeinschaftlich genutzt. Nutzen Sie diese einzigartige Chance und gestalten Sie sich hier Ihren individuellen Wohntraum in dieser hochwertigen Etagenwohnung inmitten dieser einladenden, naturnahen Gemeinde mit Vorstadt-Flair.Die angebotene Immobilie in der Gemeinde Schöneiche bei Berlin in Brandenburg befindet sich in ruhiger und dennoch zentraler Lage - ideal für Jene, die die Vorzüge einer ländlichen Umgebung schätzen, jedoch gleichzeitig die Nähe zur pulsierenden Metropole Berlin genießen möchten. Mit dem PKW ist der S-Bahnhof Friedrichshagen in gerade mal etwa 7 min, mit der Tram in ca. 17 min erreichbar (die Haltestelle liegt keine 200 m entfernt). Hier bringt Sie die S3 im 10-min-Takt in das Berliner Zentrum. Wer mit dem PKW unterwegs ist, erreicht die Autobahn A10 in nur 7 min, zum Tesla-Werk Grünheide sind es ca. 18 min, zum Flughafen BER etwa 35 min und das Stadtzentrum ist in etwa 45 min erreichbar. Einkaufsmöglichkeiten, wie Lebensmittel und Bekleidung sowie Cafés, Bäcker und Restaurants sind in unmittelbarer Nähe bzw. wenigen Minuten erreichbar, was den Alltag bequem gestaltet. Die Lage lädt zu Spaziergängen, Fahrradtouren sowie zahlreichen Ausflügen in der Natur und der Umgebung ein und bietet somit eine perfekte Mischung aus Erholung und urbanem Leben.Wir haben Ihr Interesse geweckt? Hier auf dieser Seite finden Sie jetzt die Möglichkeit der Kontaktaufnahme. Für weitere Informationen (Termine, Anschrift u.ä.) benötigen wir Ihre Angaben: Name, Vorname, Anschrift, E-Mail, Telefonnummer (fest/mobil). Unvollständige Anfragen können wir nicht bearbeiten!!! Für alle weiteren Informationen rufen Sie uns bitte unter der Telefonnummer 88888888 888 88 an. Es betreut Sie: Ulrike Mach Folgende Unterlagen werden benötigt: -Einkommensnachweise der letzten drei Monate -Personalausweis (in Kopie) -Mietschuldenfreiheitsbescheinigung vom aktuellen Vermieter -Schufa-Auskunft (888888888888888888) -im Falle einer Bürgschaft benötigen wir die gleichen Unterlagen des Bürgen und eine Bürgschaftserklärung Wir informieren wir Sie nach Absprache mit den Eigentümern rechtzeitig über mögliche Besichtigungstermine. Hierzu ist es notwendig, dass uns Ihre vollständigen Kontaktdaten, einschließlich gültiger Telefonnummer, vorliegen. Folge agas.berlin auf instagramm oder Facebook und sei immer zuerst informiert! Möchten Sie auch eine Immobilie verkaufen oder vermieten, wir informieren Sie gerne diskret und unverbindlich über Ihre Möglichkeiten. Auf 88888888888888888888888888888 finden Sie diverse Referenzen und Kundenstimmen von erfolgreichen Vermittlungen.

Impressum des Anbieters:

Kontakt und weitere Informationen nur mit Flatbee Plus+ Zugang verfügbar