Privat & provisionsfrei: Wohnungen aus Portalen, Kleinanzeigen & Social Media kombiniert


Das inserieren direkt auf Flatbee ist immer 100% kostenlos

Wohnung - Bozen - 39100 - 0 m2   premium_badge
Dies ist ein Flatbee Plus+ Inserat
premium_badge

Kaltmiete € 1800

€ 1800
Vor 1 Tag inseriert

Preis-Barometer:

0%

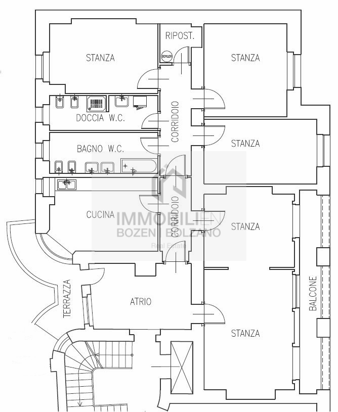
Große Wohnung im Zentrum zu vermieten


Beschreibung

Die Anfrage werden ausschließlich per Mail beantwortet. Berücksichtigt werden nur Anfragen, die diese Fragen vollständig beantwortet haben: - Anzahl & vollständiger Name der Familienmitglieder - Ab wann benötigen Sie die Wohnung und für wie lange - Anzahl und Art der Haustiere - Arbeitsplatz (Arbeitsgeber und welcher Arbeitsvertrag) Diese großzügige 5 – Zimmerwohnung mit getrennter Küche befindet sich im Zentrum von Bozen, im 2. Stock eines Gebäudes mit der Energieklasse „G“. Die Wohnung hat eine Fläche von ca. 149 m² und ist wie folgt unterteilt: Eingangsbereich mit Flur, großes Wohnzimmer, Esszimmer, Küche, 3 Schlafzimmer, 2 Bäder, Abstellraum und 2 Balkone. Die Wohnung wird unmöbliert vermietet (keine Küche vorhanden). Zur Immobilie gehört ein Keller. Heizung ist in den Kondominiumspesen enthalten. Warmwasser ist autonom.

Impressum des Anbieters:

Kontakt und weitere Informationen nur mit Flatbee Plus+ Zugang verfügbar