Privat & provisionsfrei: Wohnungen aus Portalen, Kleinanzeigen & Social Media kombiniert


Das inserieren direkt auf Flatbee ist immer 100% kostenlos

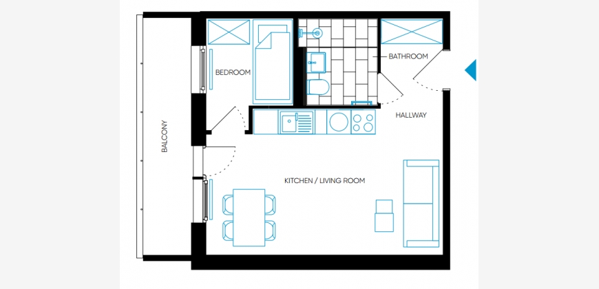
Wohnung - Berlin - 10179 - 36 m2   premium_badge
Dies ist ein Flatbee Plus+ Inserat
premium_badge

Kaltmiete € 897

Warmmiete (Kaltmiete + NK) € 1300

Preis-Barometer: -24% günstiger als ähnliche Immobilien in gleicher Lage

-24%

Berufstätige Singles aufgepasst! Möblierte 1-Zimmer-Wohnung mit Balkon in zentraler Lage


Beschreibung

Diese vollmöblierte und ausgestattete Etagenwohnung in Berlins Mitte bietet Ihnen für vorerst 2 Jahre den perfekten Wohnkomfort. Das im Jahr 2022 sanierte Gebäude verfügt über insgesamt 11 Etagen. Diese charmante 1-Zimmer-Wohnung befindet sich im 6. Stockwerk, ein Fahrstuhl steht Ihnen hier selbstverständlich zur Verfügung. Mit einer Wohnfläche von ca. 36 m², einer Nutzfläche von ca. 40 m² und dem gut durchdachten Schnitt, bietet sie ausreichend Platz für ein gemütliches Zuhause. Der separate Schlafbereich und das Badezimmer sorgen für Privatsphäre, während der offene Wohn- und Essbereich zu geselligen Stunden einlädt. Der Südbalkon ist perfekt zum Entspannen und Sonnenbaden geeignet. Die Wohnung ist ab dem 01.10.2025 verfügbar. Die Nebenkosten beinhalten bereits Strom- und Heizkosten sowie die Internetverbindung, sodass Sie sich um nichts weiter kümmern müssen. Einfach einziehen und wohlfühlen.Der Eingangsbereich führt Sie zu einem stilvollen Wohn- und Essbereich inklusive TV und einer modernen Einbauküche, ausgestattet mit Geschirrspüler, Waschmaschine, Kaffeemaschine und ausreichend Stauraum. Vom Balkon aus genießen Sie einen weiten Blick und haben ausreichend Platz für einen Tisch und Stühle. Der separate Schlafbereich mit Fenster bietet Ruhe und Privatsphäre. Der geschmackvoll gestaltete Wohnraum lädt zum Wohlfühlen ein - er bietet alles, was man für ein komfortables Wohnen benötigt. Diese charmante Immobilie verfügt über eine Fernwärme-Zentralheizung für optimalen Komfort.Die Etagenwohnung befindet sich sehr zentral in der pulsierenden Stadt Berlin. Die zentrale Lage ermöglicht eine schnelle Anbindung an die Autobahn A100, den Flughafen BER und den Potsdamer Platz, diese sind jeweils in 20, 35 und 8 Minuten mit dem Auto erreichbar. Das Berliner Zentrum ist nur 5 Minuten mit dem Fahrrad entfernt, während der Zoologische Garten, der Volkspark Friedrichshain und der Treptower Park in 10-15 Minuten mit dem Fahrrad oder den öffentlichen Verkehrsmitteln zu erreichen sind. S- und U-Bahnstationen sowie Busse sind fußläufig erreichbar, was für eine bequeme und schnelle Anbindung sorgt. Die Lage dieser Wohnung bietet somit eine ideale Kombination aus urbanem Leben und sehr guter Infrastruktur. Auch finden Sie zahlreiche Gastronomiebetriebe, Einkaufsmöglichkeiten und andere Annehmlichkeiten des Alltags in unmittelbarer Umgebung.Wir haben Ihr Interesse geweckt? Hier auf dieser Seite finden Sie jetzt die Möglichkeit der Kontaktaufnahme. Für weitere Informationen (Termine, Anschrift u.ä.) benötigen wir Ihre Angaben: Name, Vorname, Anschrift, E-Mail, Telefonnummer (fest/mobil). Unvollständige Anfragen können wir nicht bearbeiten!!! Für alle weiteren Informationen rufen Sie uns bitte unter der Telefonnummer 88888888 888 88 an. Es betreut Sie: Ulrike Mach Folgende Unterlagen werden benötigt: -Einkommensnachweise der letzten drei Monate -Personalausweis (in Kopie) -Mietschuldenfreiheitsbescheinigung vom aktuellen Vermieter -Schufa-Auskunft (888888888888888888) -im Falle einer Bürgschaft benötigen wir die gleichen Unterlagen des Bürgen und eine Bürgschaftserklärung Wir informieren wir Sie nach Absprache mit den Eigentümern rechtzeitig über mögliche Besichtigungstermine. Hierzu ist es notwendig, dass uns Ihre vollständigen Kontaktdaten, einschließlich gültiger Telefonnummer, vorliegen. Folge agas.berlin auf Instagram oder Facebook und sei immer zuerst informiert! Möchten Sie auch eine Immobilie verkaufen oder vermieten, wir informieren Sie gerne diskret und unverbindlich über Ihre Möglichkeiten. Auf 88888888888888888888888888888 finden Sie diverse Referenzen und Kundenstimmen von erfolgreichen Vermittlungen.

Impressum des Anbieters:

Kontakt und weitere Informationen nur mit Flatbee Plus+ Zugang verfügbar