Privat & provisionsfrei: Wohnungen aus Portalen, Kleinanzeigen & Social Media kombiniert


Das inserieren direkt auf Flatbee ist immer 100% kostenlos

Wohnung - Hamburg - 21073 - 110 m2   premium_badge
Dies ist ein Flatbee Plus+ Inserat
premium_badge

Kaltmiete € 1060

Warmmiete (Kaltmiete + NK) € 1190
Vor 11 Stunden aktualisiert

Preis-Barometer:

0%

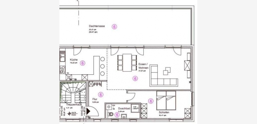
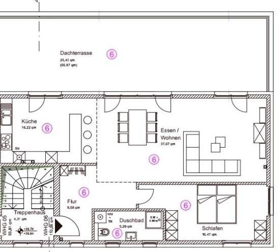
Penthouse Wohnung in Eißendorf


Beschreibung

Diese moderne und sehr gepflegte Penthouse-Wohnung bietet zu jeder Jahreszeit einen herrlichen Ausblick. Von der Dachterrasse genießt man sehr privat die Natur. In unmittelbarer Nähe befinden sich Rewe, eine Bushaltestelle, Apotheke, Kiosk, Bäcker … Die Wohnung besteht aus einem Wohn-/Esszimmer mit offener Küche sowie einem weiteren Zimmer. Vom Wohnzimmer und der Küche aus haben Sie Zugang zur großen Dachterrasse mit ca. 50 m² Grundfläche. Die Terrasse wird zur Hälfte der Grundwohnfläche dazugerechnet. Bei Bedarf ist es möglich, sich durch eine Trennwand ein weiteres kleines Zimmer einzurichten. Ausstattungsmerkmale der Wohnung: Offene Küche mit bodentiefen Fenstern für zusätzliches Licht Hinter der Küche befindet sich eine Speisekammer Gemütlicher Wohnbereich mit vielen Fensterelementen Große Regendusche Einzigartige Dachterrasse mit Ausblick ins Grüne Bodenbeläge: Fliesen und Parkett Eigener Kellerraum Stellplatz (anmietbar) Zur Wohnung gehört außerdem ein Gemeinschaftsgarten, der jederzeit nutzbar ist. Zur Miete kommen je nach Eigenverbrauch die Heizkosten hinzu.