Privat & provisionsfrei: Wohnungen aus Portalen, Kleinanzeigen & Social Media kombiniert


Das inserieren direkt auf Flatbee ist immer 100% kostenlos

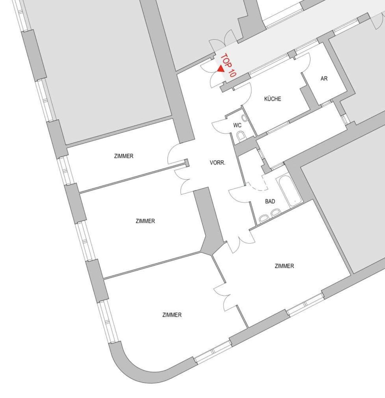
Wohnung - Frankfurt - 60323 - 118 m2   premium_badge
Dies ist ein Flatbee Plus+ Inserat
premium_badge

Kaltmiete € 1550

Warmmiete (Kaltmiete + NK) € 1870
Vor 10 Stunden inseriert

Preis-Barometer: -43% günstiger als ähnliche Immobilien in gleicher Lage

-43%

Exklusive Altbauwohnung im begehrten Westend


Beschreibung

Zur Vermietung steht eine großzügige Wohnung mit ca. 118 m² im 3. OG (Aufzug) eines wunderschönen Altbaugebäudes mit Aufzug. Diese weitläufige Wohnung umfasst 4 Zimmer, teils zentral begehbar, eine voll ausgestattete Küche, einen angrenzenden Hauswirtschaftsraum, ein geräumiges Vorzimmer, ein Badezimmer mit Dusche und Badewanne sowie ein separates WC. Die Mietdauer ist unbefristet. Genaue Adresse auf Anfrage! Raumaufteilung: - Vorzimmer - 4 Zimmer - Küche - Großer Hauswirtschaftsraum mit Waschmaschinenanschluss - Badezimmer mit Wanne und Dusche - Separates WC - WG geeignet - Westend - Nähe Grüneburgpark - Zentrale Lage