Privat & provisionsfrei: Wohnungen aus Portalen, Kleinanzeigen & Social Media kombiniert


Das inserieren direkt auf Flatbee ist immer 100% kostenlos

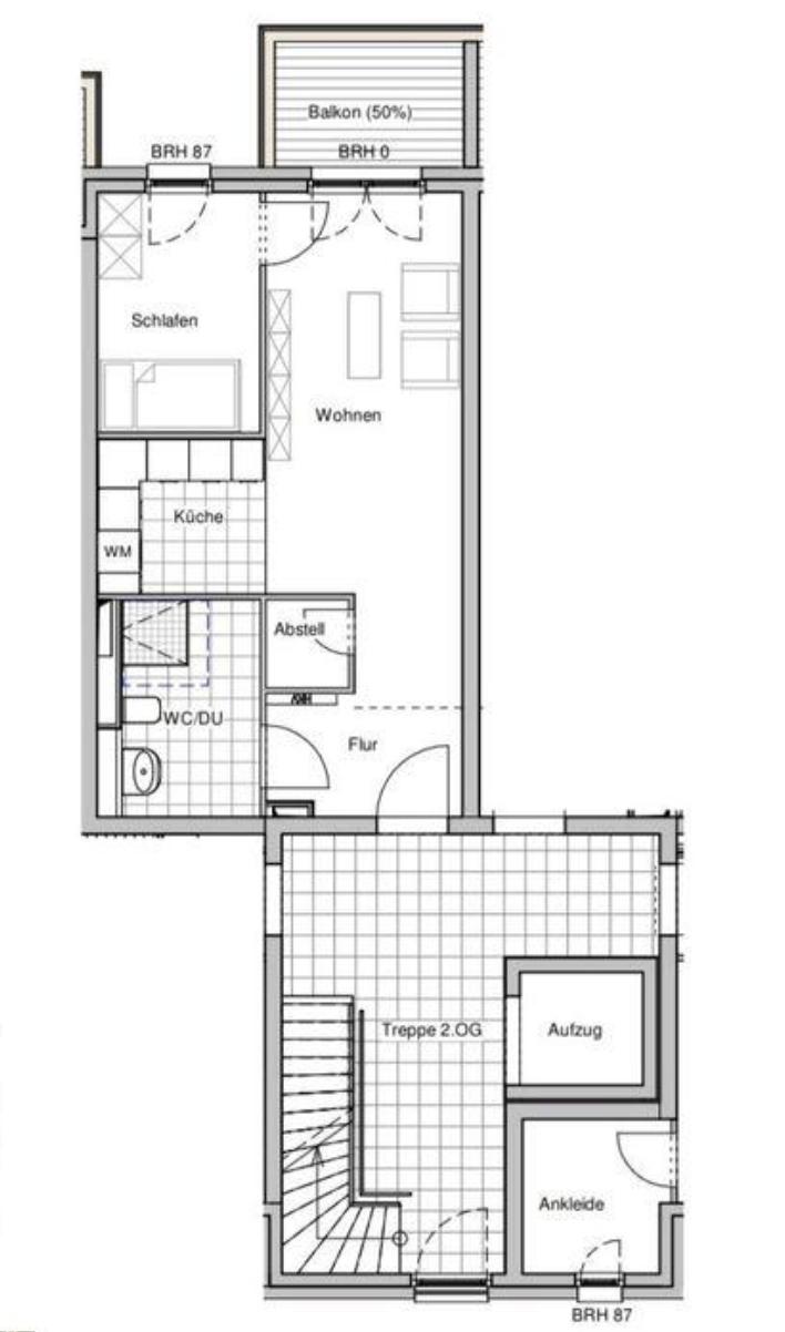
Wohnung - Berlin - 12529 - 46 m2   premium_badge
Dies ist ein Flatbee Plus+ Inserat
premium_badge

Kaltmiete € 465

Warmmiete (Kaltmiete + NK) € 553
Vor 3 Stunden aktualisiert

Preis-Barometer:

0%

Nachmieter für 2 Zimmer-Wohnung in Wilmersdorf


Beschreibung

Wohnung im 2. OG in Wilmersdforf Wohnung mit Fußbodenheizung, elektrischen Außenrollos, neuwertiger Einbauküche mit Kühlschrank und Geschirrspüler. Modernes Bad mit geräumiger Dusche. Laminatfußboden und ein geheizter, großer Keller plus Fahrradkeller. Aufzug vorhanden, der bis ins Kellergeschoss fährt. Ein schöner Balkon ist ebenfalls vorhanden.