Privat & provisionsfrei: Wohnungen aus Portalen, Kleinanzeigen & Social Media kombiniert


Das inserieren direkt auf Flatbee ist immer 100% kostenlos

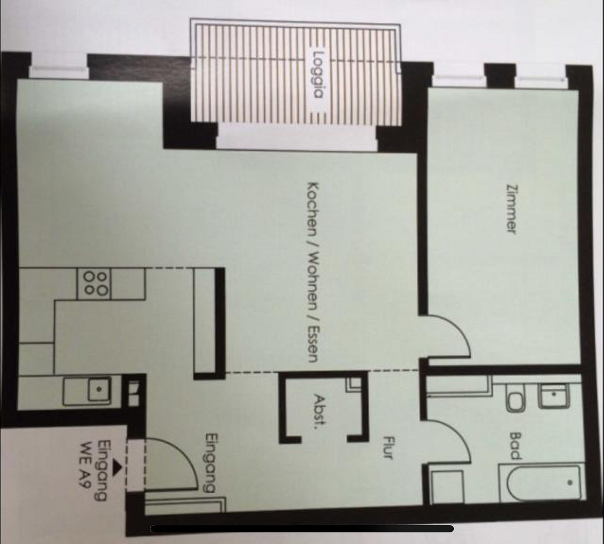
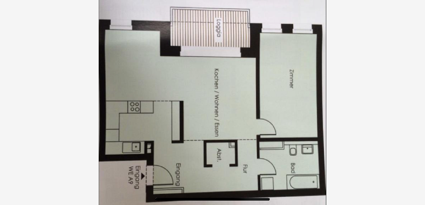
Wohnung - Salinenstraße 5, 21680 Stade – Niedersachsen - 79 m2  

Kaltmiete € 1070

von Flatbee vor 2 Tagen gefunden | vor 1 Tag auf Aktivität geprüft

Preis-Barometer: +4% teurer als ähnliche Immobilien in gleicher Lage

+4%

premium_badge
Dies ist ein Flatbee Plus+ Inserat
premium_badge

Stade-Campe: Moderne und lichtdurchflutete 2-Zimmer-Wohnung zu vermieten


Beschreibung

Lüftungsanlage, Einbauküche, Badewanne, Balkon, bodentiefe Fenster, Fahrstuhl, Kellerraum und Tiefgarage.

Stade-Campe grenzt an die Stader Altstadt an und ist gut an den öffentlichen Nahverkehr angebunden. Im modernen Stadtteil gibt es neben Schulen und Kindergärten, Spielplätzen und Sportplätzen auch mehrere Supermärkte und Bäcker. Der Stader Bahnhof ist zu Fuß in zehn Minuten zu erreichen.
Der Stadtteil besticht durch seine freundliche, bunte und helle Atmosphäre. Über die A26 bestehen sehr gute Verkehrsanbindungen in Richtung Hamburg.


Mindestmietdauer 2 Jahre.
Geeignet für Singles und für Paare.
Keine Haustiere.


Zur Besichtigung sind mitzubringen:
- Aktuelle Schufa Auskunft
- Mieter Selbstauskunft
- Letzten 3 Gehaltsnachweise
- Personalausweis


PROVISIONSFREI