Privat & provisionsfrei: Wohnungen aus Portalen, Kleinanzeigen & Social Media kombiniert


Das inserieren direkt auf Flatbee ist immer 100% kostenlos

Wohnung - Karte anzeigen 82008 Unterhaching Deutschland - 56 m2  

Kaufpreis € 409000

| vor 3 Stunden auf Aktivität geprüft

Preis-Barometer: -2% günstiger als ähnliche Immobilien in gleicher Lage

-2%

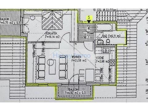
2 Zimmer Dachgeschosswohnung in Unterhaching 2 Balkone Kfz Stellplatz


Beschreibung

Die vermietete Dachgeschosswohnung mit 2 Zimmern befindet sich in ruhiger Lage in Unterhaching. Das gepflegte Haus wurde 1995 erstellt.

Vom Flur erreichen Sie das Wohnzimmer mit offenem Küchenbereich und das Bad mit Wanne. Das Schlafzimmer ist vom Wohnzimmer aus begehbar und verfügt ebenso wie das Wohnzimmer über eine Balkon. Begeistern wird Sie neben dem Sichdachstuhl auch der große Balkon.

Für Ihren PKW gibt es einen normalen TG-Stellplatz.

Die Wohnung ist seit 2010 für eine aktuelle Kaltmiete von 909 € zzgl 200 € NK Vorauszahlung vermietet. Für etwaigen Eigenbedarf gelten die gesetzlichen Fristen.

Wir freuen uns auf Ihre Anfrage.
Ausstattung
- Dachgeschosswohnung
- Wohn-/ Esszimmer
- 2 Balkone
- Schlafzimmer
- offener Küchenbereih mit EBK
- Bad mit Wanne
- Kfz Stellplatz oberirdisch
- Kellerabteil
Lagebeschreibung
Im Süden der bayerischen Landeshauptstadt liegt Unterhaching, die zweitgrößte Gemeinde des Landkreises.
Die Autobahnen A 8 und A 99 führen Sie vor Ort. Mit zwei S-Bahn-Stationen ist sie optimal in das öffentliche Verkehrsnetz eingebunden (17 Minuten bis Marienplatz). In der Gemeinde und in die umliegenden Orte verkehren verschiedene Buslinien.
Die Infrastruktur im Bereich Bildung ist mit zwei Grundschulen, einer Hauptschule, einem Gymnasium, einer Förderschule und verschiedenen Kinderbetreuungseinrichtungen gut ausgebaut. Das Kultur- und Bildungszentrum (KUBIZ) bietet ein reichhaltiges Veranstaltungsprogramm mit Ausstellungen, Theater, Kino, Konzerten und Kabarett. Auch als Wirtschaftsstandort ist Unterhaching sehr beliebt, der Feinkost- und Senfhersteller Develey ist dort ansässig, ebenso wie der Kaugummihersteller Wrigley und die Kaffeerösterei Supremo.
Mehrere große Sportanlagen und ein ausgeprägtes Vereinswesen bieten den Einwohnern vielfältige Möglichkeiten zur aktiven Freizeitgestaltung. Mit dem 126 Hektar großen Gelände des ehemaligen Militärflughafens Neubiberg haben die Unterhachinger einen Landschaftspark vor der Tür. Im Westen Unterhachings dient der Perlacher Forst als Naherholungsgebiet für Spaziergänger und Radfahrer.
Insgesamt ist Unterhaching eine lebendige Gemeinde mit vielfältigen Wohnmöglichkeiten und einem reichhaltigen Freizeitangebot am Rande der Großstadt.
Sonstiges
Es liegt ein Energieverbrauchsausweis vor.
Dieser ist gültig bis 4.10.2035.
Endenergieverbrauch beträgt 99.20 kwh/(m²*a).
Wesentlicher Energieträger der Heizung ist Erdgas leicht.

** Alle Maße und Angaben laut Auskunft des Eigentümers. Für die Richtigkeit und Vollständigkeit wird keine Haftung übernommen. Der guten Ordnung halber machen wir darauf aufmerksam, dass unsere Tätigkeit im Erfolgsfalle die Verpflichtung zur Zahlung einer Maklercourtage in Höhe von 1,785% inklusive 19% Mehrwertsteuer durch den Käufer und Verkäufer zur Folge hat, fällig und zahlbar bei Vertragsabschluss. Durch Ihre Objektanfrage bestätigen Sie diese Vereinbarung und erkennen die Zahlung der Maklercourtage an. **