Privat & provisionsfrei: Wohnungen aus Portalen, Kleinanzeigen & Social Media kombiniert


Das inserieren direkt auf Flatbee ist immer 100% kostenlos

Wohnung - Karte anzeigen 75236 Kämpfelbach (Ersingen) Deutschland - 77 m2  

Kaltmiete € 690

von Flatbee vor 4 Stunden gefunden | vor 4 Stunden auf Aktivität geprüft

Warmmiete (Kaltmiete + NK) €  930

Preis-Barometer:

0%

premium_badge
Dies ist ein Flatbee Plus+ Inserat
premium_badge

**Kämpfelbach-Ersingen, 3-Zi.-EG-Whng, Teilmodernisiert, großzügig, mit Balkon und KFZ-Stellplatz**


Beschreibung

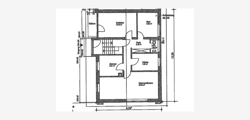
Diese gemütliche 3-Zimmer-Nichtraucher-Wohnung mit Balkon und KFZ-Stellplatz, befindet sich im Erdgeschoss eines gepflegten und 2025 teilmodernisierten 3-Parteien-Hauses in Kämpfelbach-Ersingen.

Die Wohnung ist aufgeteilt in ein großes Wohnzimmer mit Essbereich, einer zum Teil möblierten Küche, 1 Schlafzimmer, 1 Kinderzimmer, 1 modernisierten Bad mit ebenerdiger Dusche und einer Badewanne sowie einem separaten Gäste-WC.

Die Wohnung ist ausgestattet mit Parkett-, Laminat-, Fliesen- und PVC-Böden, neuen Kunstofffenstern mit Dreifachisolierverglasung und z.T. elektrischen Rolladen. Das Haus wird mit einer Pellet-Zentralheizung, zentraler Warmwasserversorgung und einer Solaranlage betrieben.

Ein KFZ-Stellplatz im Innenhof gehört zur Mietwohnung dazu.

Ein Kabelfernsehanschluss ist vorhanden und wird direkt zwischen Mieter und Kabelbetreiber abgerechnet.

Ein Keller und ein gemeinschaftlicher Wasch- und Trockenraum sind ebenfalls vorhanden.

Die Wohnung ist ab sofort frei und an sovente Mieter zu vermieten.

Eine Besichtigung lohnt sich.
Ausstattung
*gemütliche und lichtdurchflutete Erdgeschoss-Wohnung
*Nichtraucherwohnung
*2025 Teilmodernisiert
*Balkon
*teilmöblierte Küche
*modernisiertes Bad mit Badewanne, Dusche und zusätzlicher Fußbodenheizung
*Waschmaschinenanschluss im Waschraum
*separates Gäste-WC
*Zentralheizung Pellets
*Kunstofffenster mit Dreifachisolierverglasung und z.T. elektrischen Rolladen
*Wohnung geeignet auch für Senioren
*Parkett-, Laminat-, Fliesen- und PVC-Böden
*zentrale Warmwasserversorgung
*Solaranlage für Brauchwassererwärmung
*KFZ-Stellplatz im Innenhof vorhanden
*Kabelfernsehanschluss (direkt zwischen Mieter und Kabelbetreiber)
Lagebeschreibung
Die Gemeinde Kämpfelbach ist eine beliebte Wohngemeinde mit regem Vereinsleben.

Sie liegt im Kämpfelbachtal zwischen Kraichgauer Hügelland und Nordschwarzwald, verbunden mit der guten Verkehrsanbindung (A8 mit Anschlussstelle Pforzheim-West / Bahnanschluss auf der Strecke Stuttgart - Pforzheim - Karlsruhe) sowie einer gut gewachsenen Infra- und Wirtschaftsstruktur.

Kämpfelbach ist über die Autobahn Karlsruhe-Stuttgart und mit der S-Bahn aus allen Richtungen sehr gut erreichbar.

Einrichtungen des täglichen Bedarfs sowie S-Bahn, Kindergarten und Grundschule sind fußläufig erreichbar.
Weiterführende Schulen befinden sich in Königsbach-Stein oder Pforzheim.
Sonstiges
Bitte geben Sie bei Ihrer Anfrage Ihre vollständigen Kontaktdaten an. Diese werden selbstverständlich vertraulich und diskret behandelt.

Alle Angaben beruhen auf den uns überlieferten Daten. Irrtümer vorbehalten.

**Sie suchen einen verlässlichen Partner für den Verkauf, die Vermietung oder die Betreuung Ihrer Immobilie ?

Eine 5-jährige Fachausbildung, Qualifikationen, Qualität und über 30 jährige Berufserfahrung inklusive Referenzen biete ich Ihnen an**

Ich verkaufe, vermiete und verwalte gerne auch Ihre Immobilie.

PROVISIONSFREI