Privat & provisionsfrei: Wohnungen aus Portalen, Kleinanzeigen & Social Media kombiniert


Das inserieren direkt auf Flatbee ist immer 100% kostenlos

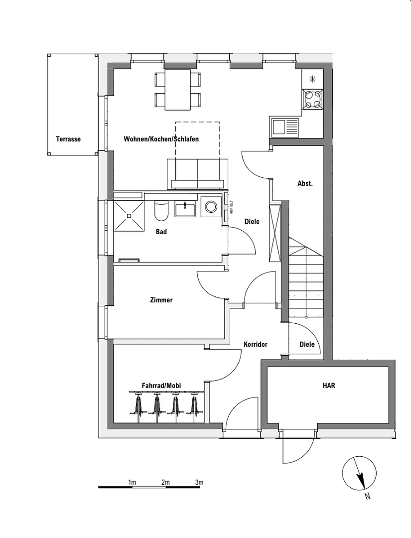
Wohnung - Tempelhofer Str. 8, 15806 Zossen – Brandenburg - 0 m2  

Kaltmiete € 612

von Flatbee vor 1 Tag gefunden | vor 1 Tag auf Aktivität geprüft

Preis-Barometer:

0%

premium_badge
Dies ist ein Flatbee Plus+ Inserat
premium_badge

Dein neues Zuhause im Grünen: 2-Zimmer-Neubauwohnung mit Garten - Erdgeschosswohnung - Zossen


Beschreibung

Die Neubauwohnungen befinden sich in ruhiger und gewachsener Wohnlage in der Zossen. Die Umgebung ist geprägt von Einfamilienhäusern, viel Grün und einer angenehmen, familienfreundlichen Nachbarschaft kombiniert mit einer hervorragenden Infrastruktur.

PROVISIONSFREI