Privat & provisionsfrei: Wohnungen aus Portalen, Kleinanzeigen & Social Media kombiniert


Das inserieren direkt auf Flatbee ist immer 100% kostenlos

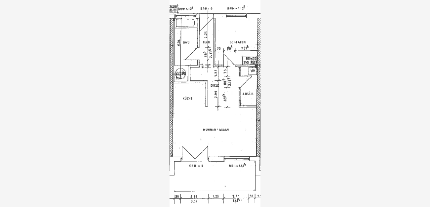
Wohnung - 74731 Walldürn – Baden-Württemberg - 75 m2  

Kaltmiete € 850

von Flatbee vor 1 Tag gefunden | vor 1 Stunde auf Aktivität geprüft

Preis-Barometer: +3% teurer als ähnliche Immobilien in gleicher Lage

+3%

premium_badge
Dies ist ein Flatbee Plus+ Inserat
premium_badge

Sonnige, stilvolle und schön geschnittene 2,5 Zi-Wo mit EBK+ Carport sucht Mieter zum Erstbezug!


Beschreibung

Einkaufsmöglichkeiten, Schulen, Kindergärten und der öffentliche Nahverkehr sind schnell erreichbar. Die naturnahe Umgebung lädt zu Spaziergängen, Radtouren oder entspannten Abenden auf dem Balkon ein.

PROVISIONSFREI