Privat & provisionsfrei: Wohnungen aus Portalen, Kleinanzeigen & Social Media kombiniert


Das inserieren direkt auf Flatbee ist immer 100% kostenlos

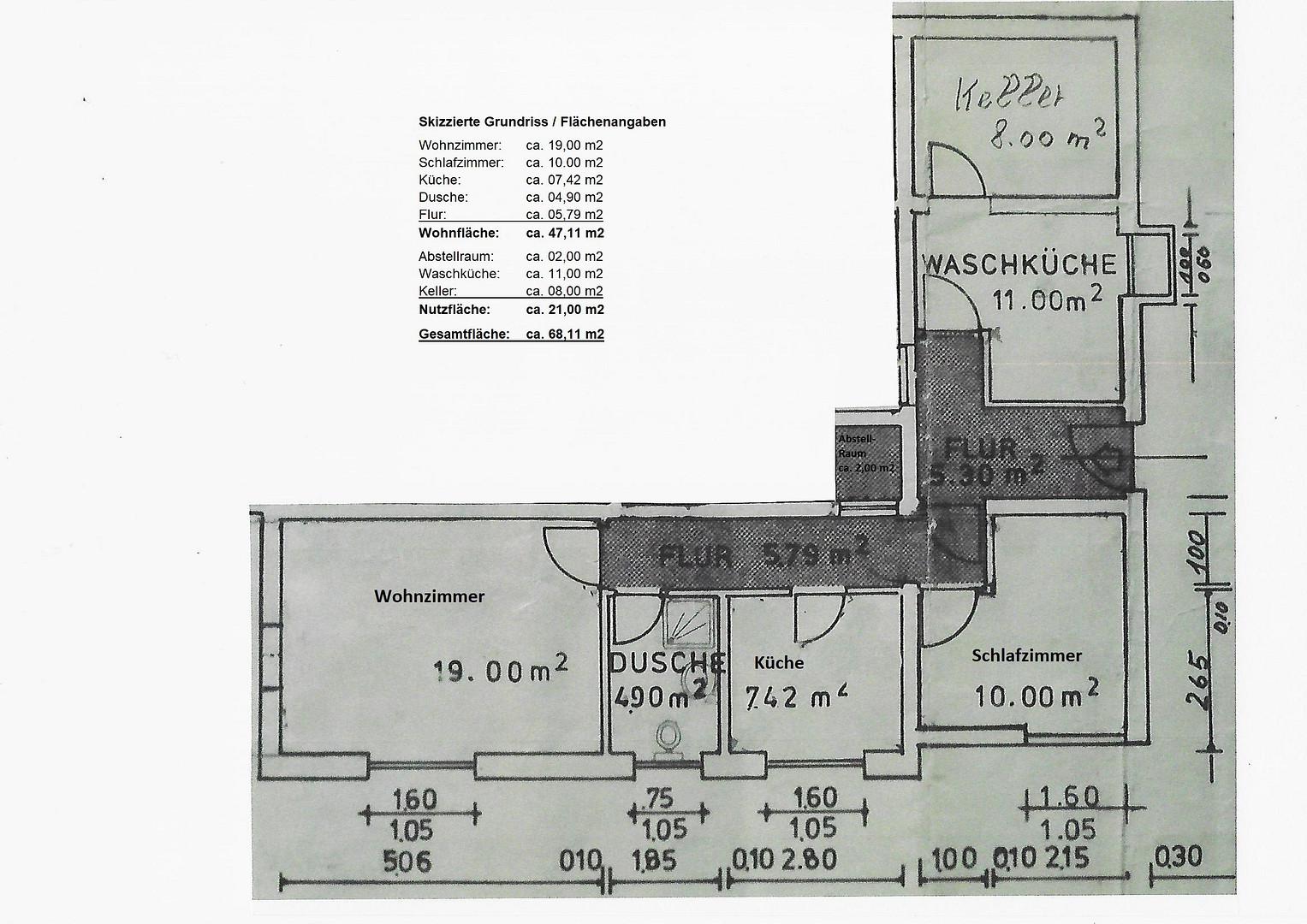
Wohnung - Kemeler Weg1, 65388 Schlangenbad Bärstadt (Bärstadt) – Hessen - 47 m2  

Kaltmiete € 480

von Flatbee vor 1 Tag gefunden | vor 1 Tag auf Aktivität geprüft

Preis-Barometer:

0%

premium_badge
Dies ist ein Flatbee Plus+ Inserat
premium_badge

Modernisierte Singlewohnung mit EBK


Beschreibung

Küche: Die Einbauküche ist modern und funktional gestaltet. Sie schafft eine perfekte Basis für kulinarische Kreativität.
Bad: Das Badezimmer überzeugt durch zeitgemäße Ausstattung, hochwertige Fliesen und eine großzügige Dusche.
Bodenbeläge: Der Boden in Vinyl und Fliesen sorgt für
Pflegeleichtigkeit.
Sate­llitenschüssel: Für TV-Unterhaltung ist mit einer
Satellitenschüssel gesorgt.
Internet: Der Glasfaseranschluss ist vorbereitet.
Eine Waschküche steht zur Verfügung und erlaubt die Nutzung einer eigenen Waschmaschine und Trockner.

Die angebotene Einliegerwohnung befindet sich in dem charmanten Ortsteil Bärstadt, eingebettet in die malerische Gemeinde Schlangenbad im Taunus.
Die idyllische Umgebung verspricht Ruhe und Naturerlebnis, während die Nähe zu Wiesbaden eine optimale Anbindung an städtische Annehmlichkeiten gewährleistet.

Bei dieser Einliegerwohnung handelt es sich um eine
Singlewohnung. Dies bedeutet, dass diese Wohnung auch nur an eine Person vermietet werden kann.
Die individuellen Stromkosten werden separat von der
Mieterschaft direkt an den Versorger bezahlt.
Beim Mietvertrag handelt es sich um einen Indexmietvertrag.
Bei Interesse schreiben Sie einfach über dieses Portal eine Mail an mich, so dass ich Sie zu einem kurzen Vorgespräch anrufen kann.

PROVISIONSFREI