Privat & provisionsfrei: Wohnungen aus Portalen, Kleinanzeigen & Social Media kombiniert


Das inserieren direkt auf Flatbee ist immer 100% kostenlos

Wohnung - Karte anzeigen Friedrich-Bosse-Straße 22 04159 Leipzig (Möckern) Deutschland - 51 m2  

Kaltmiete € 590

von Flatbee vor 1 Tag gefunden | vor 2 Stunden auf Aktivität geprüft

Warmmiete (Kaltmiete + NK) €  770

Preis-Barometer:

0%

premium_badge
Dies ist ein Flatbee Plus+ Inserat
premium_badge

Attraktive 2-Zimmer-Dachgeschosswohnung | Tageslichtbad | Ruhige Lage & gute Anbindung


Beschreibung

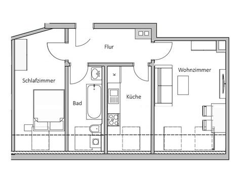
Diese charmante Dachgeschosswohnung steht ab dem 15.02.2026 zur Vermietung bereit und überzeugt durch ihren besonderen Wohncharakter. Als frisch sanierter Erstbezug bietet sie auf rund 54,50 m² Wohnfläche ein modernes und zugleich behagliches Zuhause.

Die Wohnung umfasst zwei gut geschnittene Zimmer sowie ein stilvolles Tageslichtbad, das für eine angenehme Wohnatmosphäre sorgt. Die separate Küche bietet ausreichend Platz für individuelle Kochideen und kulinarische Entfaltung.

Zusätzlichen Stauraum bietet ein Kellerabteil, das optional für 30,00 € monatlich angemietet werden kann.

Die zentrale Lage in Leipzig in Kombination mit dem besonderen Flair des denkmalgeschützten Gebäudes macht diese Wohnung besonders attraktiv und ideal für Singles oder Paare, die Wert auf Charme und Wohnqualität legen.
Wir haben Ihr Interesse geweckt? Dann kontaktieren Sie uns gern unter 8888 88888888!
Ausstattung
- Neu saniert
- stilvolles Badezimmer mit Fenster und Badewanne
- Separate Küche
- Unterkellert
- Zentralheizung
- Staffelmiete vorgesehen
Lagebeschreibung
Im Nordwesten der Messestadt, zwischen Gohlis und Wahren liegt in ca. 5 km Entfernung zum Stadtzentrum das Viertel Möckern.

Für eine schnelle Erreichbarkeit der City und umliegender Ortschaften sorgen der Zugang zur Bundesstraße B 6, Zustiegsmöglichkeiten zu den S-Bahnlinien S1 und S3 sowie die Tramlinien 4, 10 und 11.

Die Lebensader des Quartiers bildet die Georg-Schumann-Straße; vielfältige Einkaufsmöglichkeiten wie beispielsweise das Wahren-Möckern-Center, diverse Dienstleister sowie gastronomische Einrichtungen öffnen hier ihre Pforten.

Ob ein Spaziergang entlang der Weißen Elster, welche neben der Neuen Lippe den Stadtteil durchfließt, ein Nachmittag in den Kleingartenanlagen Wettinbrücke bzw. Mariengrund oder ein Besuch im Historischen Straßenbahnmuseum – Unternehmungslustige kommen voll und ganz auf ihre Kosten.

PROVISIONSFREI