Privat & provisionsfrei: Wohnungen aus Portalen, Kleinanzeigen & Social Media kombiniert


Das inserieren direkt auf Flatbee ist immer 100% kostenlos

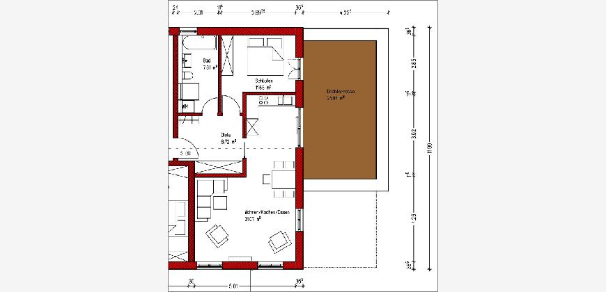
Wohnung - 83278 Traunstein – Bayern - 68 m2  

Kaltmiete € 1050

von Flatbee vor 7 Stunden gefunden | vor 7 Stunden auf Aktivität geprüft

Preis-Barometer: +19% teurer als ähnliche Immobilien in gleicher Lage

+19%

premium_badge
Dies ist ein Flatbee Plus+ Inserat
premium_badge

Bestlage Traunstein! Exklusive 2 Zimmer-Wohnung mit großer Dachterrasse, Neubau - Wohnung - Traunstein


Beschreibung

Bestlage Traunstein, alles fußläufig erreichbar, Tiefgarage optional (mit Wallbox)

PROVISIONSFREI