Privat & provisionsfrei: Wohnungen aus Portalen, Kleinanzeigen & Social Media kombiniert


Das inserieren direkt auf Flatbee ist immer 100% kostenlos

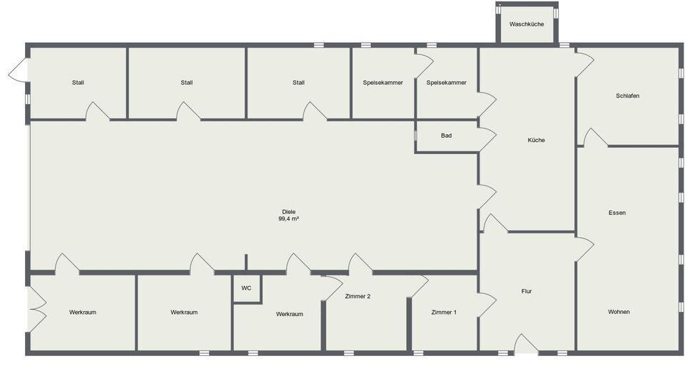
Haus - 23826 Schleswig-Holstein - Bark - 272 m2  

Kaufpreis € 550000

| vor 194 Tagen auf Aktivität geprüft

Preis-Barometer: -42% günstiger als ähnliche Immobilien in gleicher Lage

-42%

premium_badge
Dies ist ein Flatbee Plus+ Inserat
premium_badge

Resthof mit zwei Hauskoppeln und vielen Möglichkeiten


Beschreibung





Es handelt sich um einen Resthof, bestehend aus einem großen Bauernhaus mit Stallungen und Scheunen. Es gibt einen Heuboden mit ca. 620 m². Es befinden sich zwei Hauskoppeln direkt am hinteren Teil des Einzelstalls und des Schuppens. Der Garten ist liebevoll und pflegeleicht angelegt. Es gibt einige Obstbäume und Johannisbeersträucher. Auf dem hinteren Teil des Hofes befindet sich ein Altenteilhaus, welches separat an die langjährigen Mieter verkauft wurde. Hier besteht ein Wege- und Leitungsrecht. Es wird privat verkauft, ohne Provision! Eine Bauvoranfrage zum Ausbau des Hauses liegt dem Bauamt vor, wurde jedoch noch nicht endgültig bearbeitet. Bei ernst gemeintem Interesse geben Sie bitte Ihre kompletten Kontaktdaten (Adresse, Telefon, Email) an, nur dann kann ein Exposé verschickt werden!



PROVISIONSFREI