Privat & provisionsfrei: Wohnungen aus Portalen, Kleinanzeigen & Social Media kombiniert


Das inserieren direkt auf Flatbee ist immer 100% kostenlos

Haus - Karte anzeigen 35423 Lich Deutschland - 120 m2  

Kaltmiete € 1700

| vor 5 Stunden auf Aktivität geprüft

Warmmiete (Kaltmiete + NK) €  1820

Preis-Barometer: +42% teurer als ähnliche Immobilien in gleicher Lage

+42%

premium_badge
Dies ist ein Flatbee Plus+ Inserat
premium_badge

Neubau Doppelhaushälfte, Erstbezug in Lich - Muschenheim


Beschreibung

Exklusive Neubau Doppelhaushälfte, Erstbezug in Lich - Muschenheim

Diese hochwertige, zweigeschossige Doppelhaushälfte befindet sich in einem ruhigen Neubaugebiet und vereint moderne Architektur, erstklassige Ausstattung und zeitlose Eleganz.

Der Neubau (Baujahr 2026) befindet sich in der finalen Bauphase und präsentiert sich in einer gehobenen Bauweis.

Mit ca. 120 m² Wohnfläche auf zwei Ebenen bietet die Neubau-Doppelhaushälfte ein großzügiges, lichtdurchflutetes Wohnambiente - ideal für eine anspruchsvolle Familie.

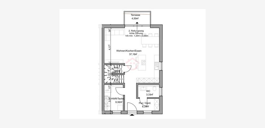
Über den Eingangsbereich gelangt man in den Flur, von dem aus alle Bereiche des Erdgeschosses bequem erreichbar sind. Auf der linken Seite befindet sich der praktische Hauswirtschafts- / Technikraum mit ausreichend Platz für Haustechnik, Waschmaschine und zusätzlicher Stauraum. Auf der rechten Seite liegt ein separates Gäste-WC mit Fenster.

Der Mittelpunkt des Erdgeschosses ist der großzügige Wohn-, Koch- und Essbereich. Die offene Gestaltung sorgt für ein modernes Wohngefühl und viel Tageslicht. Von hier aus haben Sie direkten Zugang zur Terrasse, die zum Entspannen und Verweilen im Freien einlädt.

Über eine stilvolle Treppe gelangt man in das Obergeschoss. Unterhalb der Treppe befindet sich ein abgeschlossener Abstellraum, der zusätzlichen Stauraum bietet.

Im Obergeschoss befinden sich das großzügige Schlafzimmer mit direktem Zugang zur separaten Ankleide, zwei Kinderzimmer sowie das moderne Tageslichtbad.

Das Haus verfügt über keinen Keller. Als vollwertiger Ersatz steht den Mietern jedoch ein sehr großer Dachboden, der sich über das gesamte Gebäude erstreckt und zusätzlichen Stauraum bietet, zur Verfügung.

Zum Objekt gehören zwei private Stellplätze direkt am Haus. Zusätzlich stehen ca. acht weitere öffentliche Stellplätze neben dem Gebäude zur Verfügung - ideal für Gäste oder weitere Fahrzeuge.

Sowohl die Fertigstellung der Stellplätze als auch das Anlegen von Terrasse und Garten wurden bereits beauftragt.
Ausstattung
- 4 Zimmer mit hochwertigen Fliesenböden in der gesamten zweigeschossigen Doppelhaushälfte
- Großzügiger Wohn- und Essbereich mit bodentiefen Fenstern und direktem Zugang zur Terrasse
- Keine Einbauküche vorhanden - eine hochwertige Küche kann optional nach Absprache realisiert werden
- Großes Schlafzimmer mit direktem Zugang zur separaten Ankleide
- Zwei nebeneinanderliegende Kinderzimmer
- Obergeschoss: großzügiges Tageslichtbad mit Badewanne, Dusche, WC und Waschbecken
- Erdgeschoss: separates Gäste-WC mit Fenster
- Praktischer Hauswirtschafts- / Technikraum mit moderner Bosch-Wärmepumpe als effizienter und nachhaltiger Heiztechnik
- Fußbodenheizung in allen Räumen
- Dreifach-Isolierglasfenster
- Videogegensprechanlage
- Elektrische Rollläden
- Glasfaser-Internetanschluss
- Zwei PKW-Außenstellplätze
- Kein Keller, jedoch ein großzügiger Dachboden
Lagebeschreibung
MIKROLAGE (Lage innerhalb der Stadt):

Das Haus befindet sich im Licher Ortsteil Muschenheim ruhig gelegen in einem verkehrsberuhigtem Neubaugebiet

MAKROLAGE (Lage der Stadt im Umland):

Muschenheim ist ein Stadtteil von Lich im mittelhessischen Landkreis Gießen und liegt in der landschaftlich reizvollen Wetterau. Geprägt durch sanfte Hügel, landwirtschaftlich genutzte Flächen und die Nähe zum Licher Wald bietet der Ort eine hohe Lebensqualität in naturnaher Umgebung. Die Mittelzentren Gießen und Butzbach sind in rund 15 bis 20 Minuten mit dem Auto erreichbar und bieten zahlreiche wirtschaftliche, kulturelle und bildungsbezogene Angebote. Als bedeutendes Oberzentrum liegt Frankfurt am Main etwa 50 Kilometer südlich und stellt einen wichtigen Wirtschafts- und Pendlerstandort dar. Historisch zeichnet sich Muschenheim durch seine ländliche Tradition aus, die sich in Fachwerkhäusern, historischen Bauten und einer gut erhaltenen Ortsstruktur widerspiegelt. Zudem liegt in unmittelbarer Nähe die Burg Muschenheim, ein kulturelles Wahrzeichen der Region.

INFRASTRUKTUR:

Muschenheim verfügt über eine solide Infrastruktur mit kleineren Geschäften und regionalen Dienstleistern für den täglichen Bedarf. Weiterführende Einkaufsmöglichkeiten, Supermärkte und Fachgeschäfte sind in Lich vorhanden, dass nur wenige Kilometer entfernt liegt. Bildungseinrichtungen umfassen einen Kindergarten im Ort sowie Grundschulen und weiterführende Schulen in Lich und Gießen. Die medizinische Versorgung ist durch Ärzte und Apotheken in Lich gesichert, während größere Krankenhäuser und Fachkliniken in Gießen eine umfassende medizinische Betreuung bieten. Muschenheim bietet vielfältige Freizeitmöglichkeiten, darunter Sportvereine, Rad- und Wanderwege sowie nahegelegene Erholungsgebiete wie den Licher Stadtwald. Kulturelle Veranstaltungen in Lich sowie die Nähe zur historischen Stadt Gießen erweitern das Freizeitangebot zusätzlich.

VERKEHRSANBINDUNG:

Muschenheim ist verkehrstechnisch gut angebunden. Die Bundesstraße B457 ist in wenigen Minuten erreichbar und ermöglicht eine schnelle Verbindung nach Lich, Gießen und Hungen. Die Autobahn A5, die eine direkte Verbindung ins Rhein-Main-Gebiet bietet, ist über die nahegelegene Anschlussstelle Fernwald schnell zugänglich. Der öffentliche Nahverkehr wird durch Buslinien sichergestellt, die regelmäßige Verbindungen nach Lich und Gießen bieten. Der nächstgelegene Bahnhof befindet sich in Lich mit Anbindungen an das regionale Schienennetz. Der internationale Flughafen Frankfurt am Main ist in etwa 50 Minuten mit dem Auto erreichbar und bietet eine optimale Anbindung an nationale und internationale Ziele.
Sonstiges
Alle in diesem Exposé gemachten Angaben beruhen auf den uns zur Verfügung gestellten Informationen und sind ohne Gewähr.

PROVISIONSFREI