Privat & provisionsfrei: Wohnungen aus Portalen, Kleinanzeigen & Social Media kombiniert


Das inserieren direkt auf Flatbee ist immer 100% kostenlos

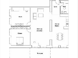
Wohnung - 01936 Königsbrück - 76 m2  

Kaltmiete € 719

von Flatbee vor 3 Tagen gefunden | vor 3 Stunden auf Aktivität geprüft

Warmmiete (Kaltmiete + NK) €  899

Preis-Barometer:

0%

premium_badge
Dies ist ein Flatbee Plus+ Inserat
premium_badge

Ab sofort zu haben: 3-Zimmer-Wohnung mit Terrasse, Gartennutzung am Rande von Königsbrück


Beschreibung

  • ObjektbeschreibungDie hübsche Wohnung im Erdgeschoss mit Terrasse sucht einen neue, nette Mieter! Bezug ab Mitte April 2026 oder später möglich!
    Mindestmietdauer 1 Jahr.

    Bei Anmietung benötigen wir eine Schufa-Auskunft, möglichst ohne Negativeinträge.
    Keine Haltung von mittleren und großen Hunden gestattet.
    Nicht für eine Anmietung über das Jobcenter geeignet.
  • Die Wohnung bietet ein Wohnzimmer mit Zugang zur Küche, ein gemütliches Schlafzimmer und ein Kinderzimmer. Die Terrasse und den Gartenanteil erreichen Sie vom Wohnzimmer.

    Das Bad ist mit Fenster, Badewanne und Waschmaschinenanschluss ausgestattet.

    In der Wohnung finden Sie Laminatboden, Flur, Küche und Bad sind gefliest.

    Ein Abstellraum in der Wohnung sowie ein PKW-Stellplatz auf dem Grundstück sind ebenfalls vorhanden.

    Gern können Sie vorab am Haus vorbeigehen. Bei näherem Interesse vereinbaren Sie sich bitte einen Besichtigungstermin mit uns.
    Sie erreichen uns unter Telefon 888888888888 oder im Büro 888888888888.

    PROVISIONSFREI