Privat & provisionsfrei: Wohnungen aus Portalen, Kleinanzeigen & Social Media kombiniert


Das inserieren direkt auf Flatbee ist immer 100% kostenlos

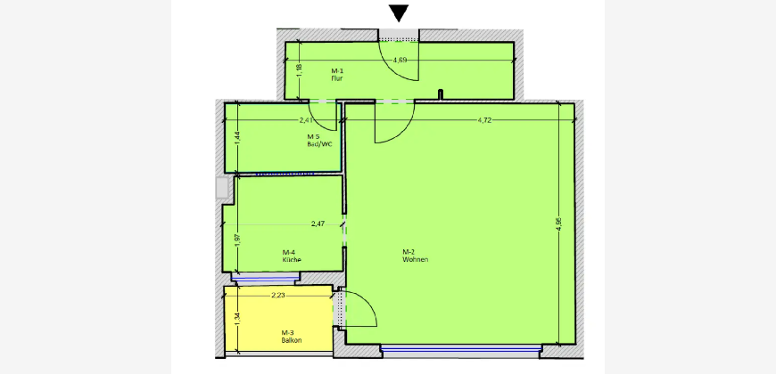
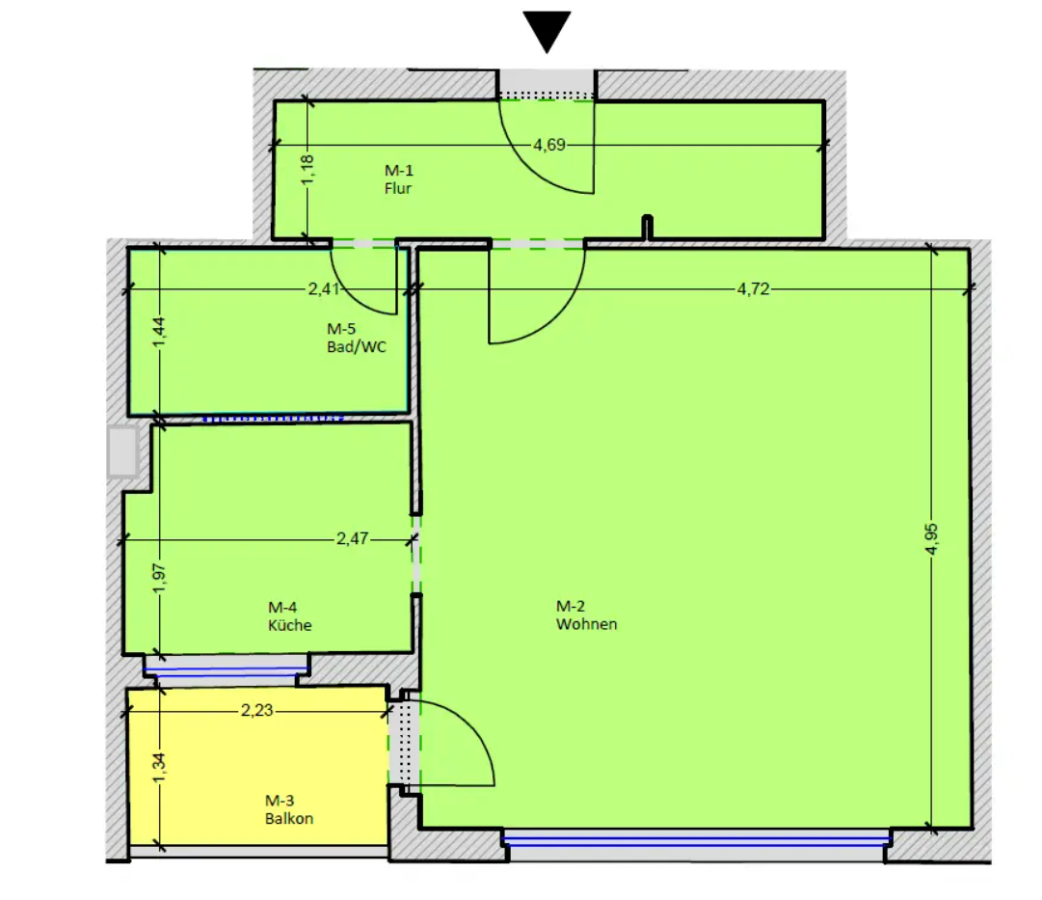
Wohnung - 12167 Berlin (Steglitz-Zehlendorf) Die vollständige Adresse der Immobilie erhalten Sie vom Anbieter. - 38 m2  

Kaltmiete € 700

von Flatbee vor 1 Tag gefunden | vor 5 Stunden auf Aktivität geprüft

Preis-Barometer: -23% günstiger als ähnliche Immobilien in gleicher Lage

-23%

premium_badge
Dies ist ein Flatbee Plus+ Inserat
premium_badge

Saniertes und möbliertes 1-Zimmer-Wohnung


Beschreibung




Objektbeschreibung

Dieses schöne und sehr helle 1-Zimmer-Apartment befindet sich im obersten Geschoss eines gepflegten Mehrfamilienhauses in einer ruhigen Seitenstraße direkt am Teltowkanal. Die Wohnung wurde 2025 umfassend saniert und wird möbliert vermietet. Durch die Süd-Ausrichtung wirkt der Wohnraum besonders freundlich und lichtdurchflutet. Zur Wohnung gehört ein Balkon mit angenehmer Aussicht sowie die Möglichkeit, den Garten des Hauses mitzubenutzen. Zusätzlich steht ein Kellerraum zur Verfügung, der ausreichend Platz für persönliche Gegenstände bietet.



Ausstattung

Die Wohnung wurde modern ausgestattet und verfügt über einen neuen Bodenbelag, erneuerte Leitungen sowie integrierte Beleuchtung. Die offene Einbauküche ist neu und enthält Induktionskochfeld, Backofen, leise Spülmaschine sowie Kühl-Gefrierkombination und ausreichend Stauraum. Das Badezimmer ist funktional und modern gestaltet mit Dusche, Waschbecken, beleuchtetem Spiegelschrank und Handtuchheizkörper. Warmwasser wird über einen elektrischen Durchlauferhitzer erzeugt. Beheizt wird die Wohnung über eine zentrale Ölheizung.




PROVISIONSFREI