Privat & provisionsfrei: Wohnungen aus Portalen, Kleinanzeigen & Social Media kombiniert


Das inserieren direkt auf Flatbee ist immer 100% kostenlos

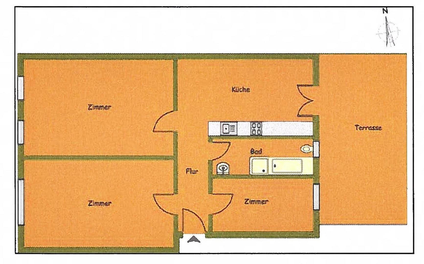
Wohnung - Driesener Straße 5, 10439 Berlin (Prenzlauer Berg) - 0 m2  

Kaltmiete € 1580

von Flatbee vor 1 Tag gefunden | vor 1 Tag auf Aktivität geprüft

Preis-Barometer:

0%

premium_badge
Dies ist ein Flatbee Plus+ Inserat
premium_badge

Altbaucharme im EG - Prenzlauer Berg - ideale Wohnung für Paare - Erdgeschosswohnung - Berlin


Beschreibung

Die Wohnung befindet sich im Herzen des Prenzlauer Bergs, einer der beliebtesten Wohnlagen Berlins. Zahlreiche Cafés, Restaurants, kleine Boutiquen und Wochenmärkte sind in direkter Umgebung zu finden. Die Anbindung an den ÖPNV ist ausgezeichnet - U-Bahn und Straßenbahn erreichen Sie in wenigen Minuten zu Fuß.

PROVISIONSFREI