Privat & provisionsfrei: Wohnungen aus Portalen, Kleinanzeigen & Social Media kombiniert


Das inserieren direkt auf Flatbee ist immer 100% kostenlos

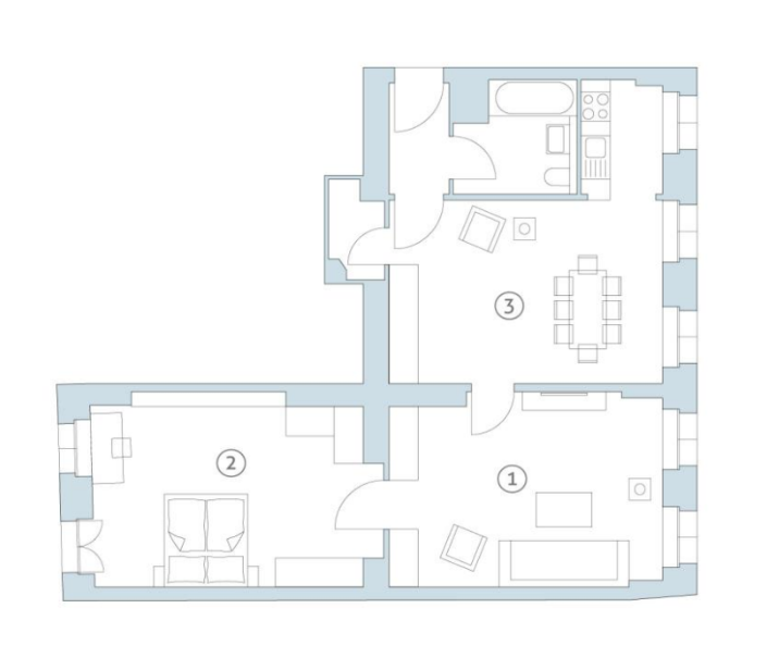
Wohnung - Torstraße 225, 10115 Berlin (Mitte) - 0 m2  

Kaltmiete € 1900

von Flatbee vor 2 Tagen gefunden | vor 9 Stunden auf Aktivität geprüft

Preis-Barometer:

0%

premium_badge
Dies ist ein Flatbee Plus+ Inserat
premium_badge

Premium-Altbau mit moderner Ausstattung und perfekter Lage - Terrassenwohnung - Berlin


Beschreibung

Berlin-Mitte (Mitte) ist ein zentraler und lebendiger Stadtteil mit einer hervorragenden Infrastruktur. Zahlreiche Einkaufsmöglichkeiten, Restaurants, Cafés und kulturelle Einrichtungen sind fußläufig erreichbar. Die Anbindung an den öffentlichen Nahverkehr ist exzellent, was eine schnelle Erreichbarkeit anderer Stadtteile ermöglicht. Parks und Grünflächen bieten Erholungsmöglichkeiten im urbanen Umfeld.

PROVISIONSFREI