Privat & provisionsfrei: Wohnungen aus Portalen, Kleinanzeigen & Social Media kombiniert


Das inserieren direkt auf Flatbee ist immer 100% kostenlos

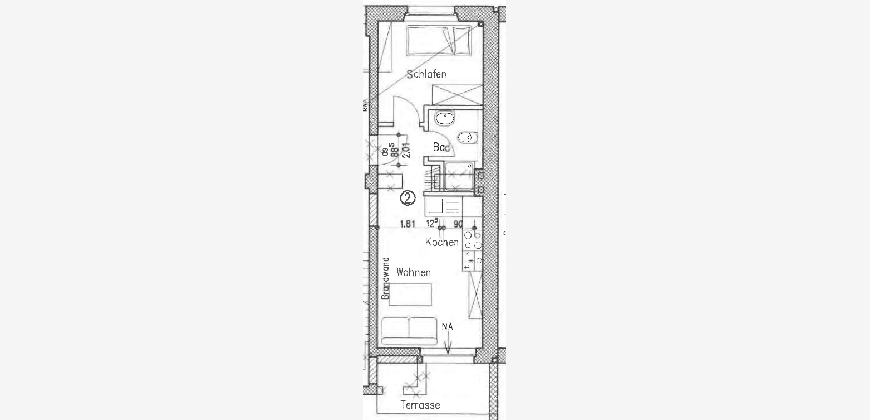
Wohnen auf Zeit - 44803 Bochum (Altenbochum) – Nordrhein-Westfalen - 34 m2  

Kaltmiete € 455

von Flatbee vor 6 Tagen gefunden | vor 6 Stunden auf Aktivität geprüft

Preis-Barometer: +22% teurer als ähnliche Immobilien in gleicher Lage

+22%

premium_badge
Dies ist ein Flatbee Plus+ Inserat
premium_badge

2 Zimmer Whg. mit Terrasse | teilmöbl. mit EBK | saniert| zentral in Bochum


Beschreibung



Die Wohnung befindet sich in der Velsstraße in Bochum. Die U-Bahnhaltestelle Wasserstraße ist in wenigen Minuten fußläufig zu erreichen. Es besteht eine gute Anbindung zur Ruhr-Universität (RUB) und dem Stadtzentrum von Bochum. Geschäfte des täglichen Bedarfs befinden sich in unmittelbarer Nähe.




Sonstiges



Die Besichtigungen werden voraussichtlich in der KW2 2026 erfolgen.


Makleranfragen unerwünscht! Nach § 7 UWG sind unaufgeforderte Kontaktaufnahmen durch Makler ohne ausdrückliche Einwilligung des Empfängers verboten!



88888888888 role="separator">


Themenportale


    888888888888888888888 pl-2 mb-4>
  • Altbau




PROVISIONSFREI