Privat & provisionsfrei: Wohnungen aus Portalen, Kleinanzeigen & Social Media kombiniert


Das inserieren direkt auf Flatbee ist immer 100% kostenlos

Haus - Karte anzeigen 91257 Pegnitz (Leups) Deutschland - 175 m2  

Kaufpreis € 247000

| vor 2 Stunden auf Aktivität geprüft

Preis-Barometer: -23% günstiger als ähnliche Immobilien in gleicher Lage

-23%

Wohnhaus mit ehemaliger Gastwirtschaft und Scheune in Leups bei Pegnitz zu verkaufen.


Beschreibung

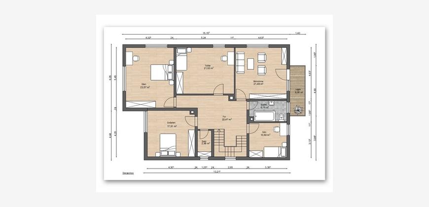
Zum Verkauf steht ein Ein-, bzw. Zweifamilienhaus mit ehemaliger Gastwirtschaft. In dem voll unterkellertem Objekt befindet sich im Erdgeschoss die ehemalige Gastwirtschaft, welche durch Renovierungs- bzw. Sanierungsmaßnahmen zu einer ca. 105 qm großen Wohnung umgestaltet werden kann.
Im Obergeschoss findet man eine 115 qm große Vierzimmerwohnung mit teilweise Echtholzparkettboden, sowie Vinylböden. Das Badezimmer wurde vor ca. 8 Jahren erneuert. Diese Wohneinheit kann mit überschaubaren Renovierungsmaßnahmen in kürzester Zeit zu einer modernen Wohnung umgestaltet werden.
Im Obergeschoss sind nochmals 2 geräumige, sowie ein kleineres Zimmer und ein Duschbad. In diesem Bereich ist ebenfalls eine Renovierung zu empfehlen.
Ein großer Pluspunkt sind die ca. 13 Jahre alte Pelletheizung sowie die ca. 10 Jahre alten Fenster im gesamten Gebäude. Auch der Keller wurde in den letzten Jahren fast komplett renoviert, mit z. B. neuen Elektro- und Wasserleitungen, sowie neuen Böden. Ein Kraftstromanschluss ist ebenfalls vorhanden.
Desweiteren befindet sich eine Scheune mit zwei großen Toren und einem Seiteneingang auf dem Grundstück, welches zum Angebot gehört. 4 Außenstellplätze, sowie Park- und Abstellmöglichkeiten in der Scheune runden dieses Angebot ab.
Ausstattung
neuwertige Fenster, Bj. 2016
neuwertige Pelletheizung mit Speicher, Bj. 2013
renovierter Keller
Echtholzparkettboden im OG
Moderne Einbauküche mit Insel
Lagebeschreibung
Leups ist ein Gemeindeteil der Stadt Pegnitz mit einer Entfernung von ca 9 km. Über die B2/B85 benötigt man mit dem Auto ca. 10 Minuten. Nach Bayreuth gelangt man über die A9, bzw. die B2/B85 in ca. 20 Minuten. Die Autobahnauffahrt Trockau erreicht man nach wenigen Minuten.
Sonstiges
Grundfläche EG ca 105 qm, sanierungsbedürftig
Scheune mit 3 Ebenen