DIE SUCHMASCHINE FÜR PRIVATE UND PROVISIONSFREIE IMMOBILIEN


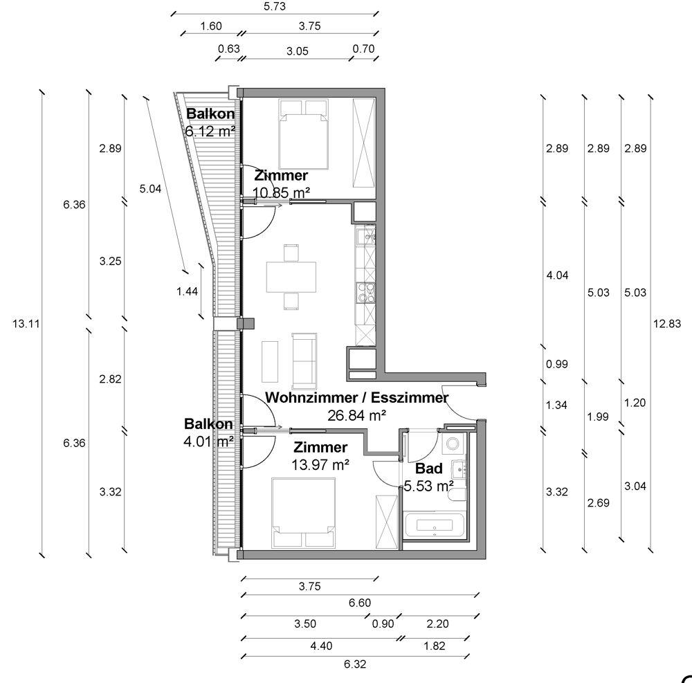
Wohnung - 3 Zimmer Etagenwohnung in 10117 Berlin mieten - 62 m2  

Kaltmiete € 1900

von Flatbee vor 1 Tag gefunden | vor 1 Tag auf Aktivität geprüft

Warmmiete (Kaltmiete + NK) €  2250

Preis-Barometer:

0%

premium_badge
Dies ist ein Flatbee Plus+ Inserat
premium_badge

Urbane 3 Zimmer Wohnung ca. 62m², EBK, Fußbodenheizung und Balkon mit Weitblick in Berlin-Mitte


Beschreibung



Anzeigeart: Miete    
Anzeigentyp: Wohnungen   
Kategorie: Etagenwohnung






Objektbeschreibung:

Diese tolle 2 Zimmer Wohnung mit ca. 41m² Wohnfläche und gemütlichem Sonnenbalkon im 2. Stock des modernen Wohnkomplexes Charlie Living in Berlin-Mitte sucht einen neuen Mieter. Tolle Design-Details, eine hochwertige Ausstattung und viele ergänzende Mieter-Services machen das Wohnen im Charlie Living zu einem echten Premium-Erlebnis.



Hochwertiges Eichenparkett mit Fußbodenheizung, eine großzügige Fensterfront und die schicke Einbauküche...



Neugierig geworden? Alle Informationen und das vollständige Exposé erhalten Sie schnell und unkompliziert auf Anfrage.

PROVISIONSFREI