Privat & provisionsfrei: Wohnungen aus Portalen, Kleinanzeigen & Social Media kombiniert


Das inserieren direkt auf Flatbee ist immer 100% kostenlos

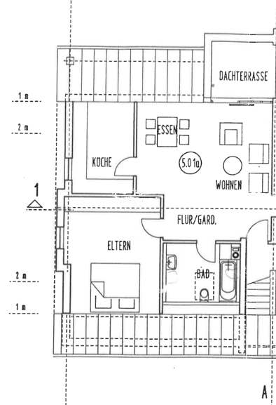
Wohnung - 63517 Rodenbach (Niederrodenbach) – Hessen - 58 m2  

Kaltmiete € 685

von Flatbee vor 10 Stunden gefunden | vor 2 Stunden auf Aktivität geprüft

Preis-Barometer: +7% teurer als ähnliche Immobilien in gleicher Lage

+7%

premium_badge
Dies ist ein Flatbee Plus+ Inserat
premium_badge

Lichtdurchflutete, charmante Dachgeschosswohnung mit Küche & Balkon


Beschreibung

In der Küche wird das Spülbecken und die Küchenarmatur noch hochwertig erneuert.

Die Wohnung befindet sich in attraktiver und zentraler Lage von Niederrodenbach und bietet eine ideale Kombination aus ruhigem Wohnen und hervorragender Infrastruktur. Einrichtungen des täglichen Bedarfs wie Lebensmittelläden, Bank, Tankstelle sowie eine beliebte Eisdiele sind in wenigen Gehminuten erreichbar. Auch eine Bushaltestelle befindet sich in unmittelbarer Nähe und sorgt für eine gute Anbindung an den öffentlichen Nahverkehr.


Dank der sonnigen Ausrichtung und der angenehmen Umgebung genießen Sie hier ein entspanntes Wohnumfeld mit kurzen Wegen.

Zur Wohnung gehört ein Stellplatz, welcher für 40,- € monatlich dazu gemietet werden kann.

PROVISIONSFREI