DIE SUCHMASCHINE FÜR PRIVATE UND PROVISIONSFREIE IMMOBILIEN


Wohnung - Karte anzeigen 13503 Berlin (Heiligensee) Deutschland - 75 m2  

Kaufpreis € 290000

von Flatbee vor 1 Tag gefunden | vor 9 Stunden auf Aktivität geprüft

Preis-Barometer: +6% teurer als ähnliche Immobilien in gleicher Lage

+6%

Vermietete Maisonette-Wohnung mit Balkon und Zugang zum See - Berlin Heiligensee


Beschreibung

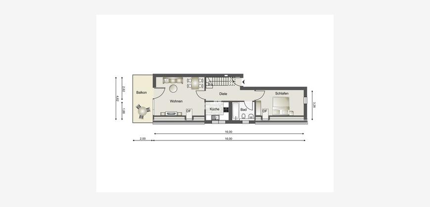
Zum Verkauf steht eine gepflegte 2-Zimmer-Wohnung mit ausgebautem Spitzboden im 2. Obergeschoss eines im Jahr 1996 erbauten, zweigeschossigen Hauses. Die Wohnung umfasst ca. 75 m² Wohnfläche und überzeugt durch ein helles und freundliches Wohnambiente. Der ausgebaute Spitzboden lässt sich vielseitig nutzen – beispielsweise als Arbeits-, Gäste- oder Schlafzimmer.

Die Wohnung verfügt über ein gefliestes Wannenbad und eine praktische, geflieste kleine Einbauküche. Ergänzt wird das Angebot durch einen Kellerraum, einen gemeinschaftlichen Fahrradraum sowie einen Waschraum im Keller, die zusätzlichen Stauraum und Komfort bieten.

Das Haus gehört zu einer gepflegten Eigentümergemeinschaft. Auf dem rund 200 m² großen Grundstück lädt ein großer Gemeinschaftsgarten zum Entspannen und Verweilen ein. Besonders attraktiv ist die unmittelbare Nähe zum Heiligensee, der mit einem privaten Zugang nur wenige Schritte entfernt liegt und zahlreiche Freizeitmöglichkeiten bietet.

Haben wir Ihr Interesse geweckt? Gerne übersenden wir Ihnen das ausführliche Exposé mit weiteren Informationen und Details zum Objekt.
Ausstattung
• Wohnfläche: ca. 75 m²
• Zimmer: 3
• Baujahr: 1996
• Stockwerk: 2. OG + Spitzboden
• Ausstattung: normal
• Keller: vorhanden
• Stellplatz im Freien
• Ruhige Wohnlage in Berlin-Tegel, Nähe zum See
Lagebeschreibung
Die Wohnung befindet sich im Schwabstedter Weg in Heiligensee, einem grünen und ruhigen Ortsteil des Bezirks Reinickendorf. Heiligensee liegt direkt am Tegeler See und zeichnet sich durch eine idyllische Kombination aus Wasser-, Wald- und Grünflächen aus – ideal für Spaziergänge, Radtouren, Jogging oder Wassersportaktivitäten. Der See lädt zudem zum Entspannen, Schwimmen und Bootfahren ein, während die umliegenden Wälder Ruhe und Erholung vom städtischen Alltag bieten.

Trotz der naturnahen Lage ist die Infrastruktur hervorragend: Einkaufsmöglichkeiten für den täglichen Bedarf, Schulen, Kitas und ärztliche Versorgung sind in kurzer Distanz erreichbar. Familien schätzen die ruhige und gewachsene Nachbarschaft, während Paare und Singles die Nähe zur Natur bei gleichzeitig guter Anbindung an die Stadt genießen.

Die Verkehrsanbindung ist sehr gut: Buslinien bringen Sie in wenigen Minuten zu den U-Bahnstationen in Tegel, von wo aus die Berliner Innenstadt schnell erreichbar ist. Auch die Stadtautobahn ist gut angebunden, sodass sowohl Pendler als auch Berufstätige flexibel unterwegs sind.

Für Kapitalanleger ist die Lage durch die nachhaltige Nachfrage nach Wohnraum in Heiligensee attraktiv, während Eigennutzer besonders die Kombination aus Ruhe, Natur und städtischer Nähe schätzen.
Sonstiges
Wir haben Ihr Interesse geweckt?
Hier auf dieser Seite finden Sie jetzt die Möglichkeit der Kontaktaufnahme. Für weitere Informationen (Termine, Anschrift u.ä.) benötigen wir Ihre Angaben: Name, Vorname, Anschrift, E-Mail, Telefonnummer (fest/mobil).
Anfragen ohne Angabe Ihrer Rückrufnummer und Ihrer Adresse können von uns nicht bearbeitet werden!

Für alle weiteren Informationen rufen Sie uns bitte unter der Telefonnummer 0172 55 2342212 an. Es betreut Sie: Romy Bollmann

Die Angaben in diesem Angebot beruhen auf Angaben des Auftraggebers oder Dritten. Agas-Immobilien übernimmt keine Haftung und keine Gewähr für die Richtigkeit, Vollständigkeit und Aktualität dieser Angaben. Insbesondere die Angaben zur Wohnfläche, zur Nutzfläche und zur Aufteilung der Wohn-/Nutzfläche sind von uns nicht durch ein eigenes Aufmaß oder eine eigene Wohnflächenberechnung kontrolliert worden. Die Angaben zum Baujahr sind nicht durch eine Einsicht in die Bauakte überprüft worden. Irrtum, Auslassungen und Zwischenverwertung vorbehalten.

Wir weisen vorsorglich darauf hin, dass sich der angegebene Kaufpreis bei entsprechend starker Nachfrage ändern kann. Der Käufer hat bei Abschluss des Kaufvertrages eine Provision in Höhe von 3,57 % (inkl. gesetzl. MwST) vom Kaufpreis an uns für Nachweis und/oder Vermittlung des Kaufobjekts zu zahlen. Die Provision ist fällig und zahlbar bei Kaufvertragsunterzeichnung. Wir weisen darauf hin, dass wir mit dem Verkäufer einen Provisionsvertrag über die gleiche Höhe geschlossen haben. Ein Provisionsanspruch entsteht auch dann, wenn ein wirtschaftlich gleichartiges oder ähnliches Geschäft zustande kommt.

Nur ein geringer Anteil unserer Immobilien wird von uns im Internet präsentiert. Suchende können sich über unsere Website http://www.agas-immobilien.de/sie-suchen-wir-finden für Immobilien vormerken lassen. Sie erhalten dann Immobilienangebote, bevor diese online vermarktet werden.

Folgen Sie agas.berlin auf Instagram oder Facebook und seien immer zuerst informiert!

Möchten Sie eine Immobilie verkaufen oder vermieten, wir informieren Sie gerne diskret und unverbindlich über Ihre Möglichkeiten.
www.agas-immobilien.de