Privat & provisionsfrei: Wohnungen aus Portalen, Kleinanzeigen & Social Media kombiniert


Das inserieren direkt auf Flatbee ist immer 100% kostenlos

Wohnung - Berner Straße 9, 12205 Berlin (Lichterfelde) - 0 m2  

Kaltmiete € 1200

von Flatbee vor 19 Stunden gefunden | vor 4 Stunden auf Aktivität geprüft

Preis-Barometer:

0%

premium_badge
Dies ist ein Flatbee Plus+ Inserat
premium_badge

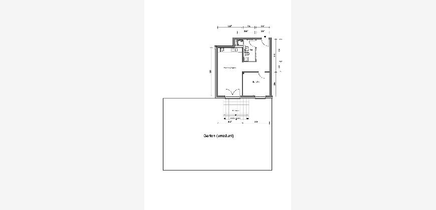
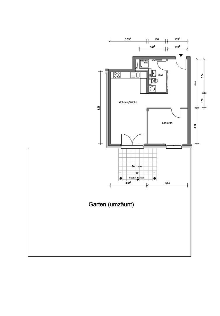
Neubau-2-Zimmer-Erdgeschosswohnung mit Garten in Lichterfelde West - Terrassenwohnung - Berlin


Beschreibung

Die Immobilie befindet sich in belebter Wohnlage in Berlin. Die Buslinien 188, N88 und X11 sind fußläufig zu erreichen, die S-Bahn Stationen Lichterfelde West und Sundgauer Straße sind ebenfalls fußläufig erreichbar. In direkter Umgebung finden Sie einige Restaurants, Bäckereien, Cafés, Supermärkte und auch Ärzte vor.

PROVISIONSFREI