Privat & provisionsfrei: Wohnungen aus Portalen, Kleinanzeigen & Social Media kombiniert


Das inserieren direkt auf Flatbee ist immer 100% kostenlos

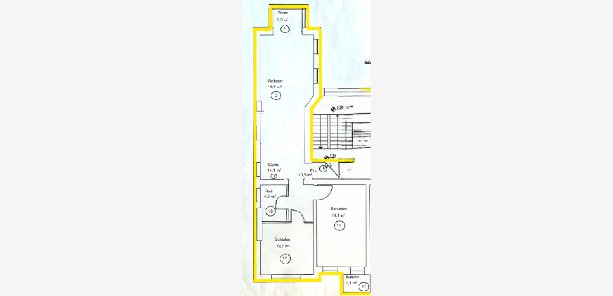
Wohnung - 13158 Berlin (Wilhelmsruh) - 0 m2  

Kaltmiete € 1500

von Flatbee vor 14 Stunden gefunden | vor 3 Stunden auf Aktivität geprüft

Preis-Barometer:

0%

premium_badge
Dies ist ein Flatbee Plus+ Inserat
premium_badge

Möblierte 3 Raum Altbauwohnung mit Seeblick/Furnished Apartment with Lake View in Berlin-Pankow - Wohnung - Berlin


Beschreibung

Die Wohnung liegt ruhig und dennoch zentral in Berlin-Pankow und befindet sich direkt an einem idyllischen Park mit kleinem See, der einen besonderen Erholungswert bietet. Der S-Bahnhof ist nur etwa 500 Meter entfernt und bietet mit im Zehn-Minuten-Takt fahrenden Zügen eine schnelle Verbindung in die Berliner Innenstadt. Berlin-Mitte ist in etwa 10 bis 15 Minuten erreichbar. Von dort aus lassen sich zahlreiche Sehenswürdigkeiten wie das Brandenburger Tor, der Bundestag oder der Kurfürstendamm bequem erkunden. Auch Bootsfahrten auf der Spree sind möglich. Das lebendige Viertel Friedrichshain mit seinen vielen Bars, Cafés und Clubs ist ebenfalls schnell zu erreichen. In unmittelbarer Umgebung der Wohnung befinden sich zudem kleine Cafés und Bistros, die zum Verweilen einladen.

PROVISIONSFREI