Privat & provisionsfrei: Wohnungen aus Portalen, Kleinanzeigen & Social Media kombiniert


Das inserieren direkt auf Flatbee ist immer 100% kostenlos

Wohnung - Karte anzeigen Gröbener Dorfstraße 50 A 14974 Ludwigsfelde (Gröben bei Ludwigsfelde) Deutschland - 96 m2  

Kaltmiete € 1295

von Flatbee vor 1 Tag gefunden | vor 4 Stunden auf Aktivität geprüft

Warmmiete (Kaltmiete + NK) €  1679

Preis-Barometer: +4% teurer als ähnliche Immobilien in gleicher Lage

+4%

premium_badge
Dies ist ein Flatbee Plus+ Inserat
premium_badge

Großzügige 3-Zimmer-Wohnung in naturnaher Lage mit Gartenanteil


Beschreibung

Diese attraktive Wohnung befindet sich in einem liebevoll sanierten Mehrfamilienhaus im idyllischen Gröben, einem Ortsteil der Stadt Ludwigsfelde. Der historische Charme des Hauses verbindet sich hier harmonisch mit modernem Wohnkomfort.
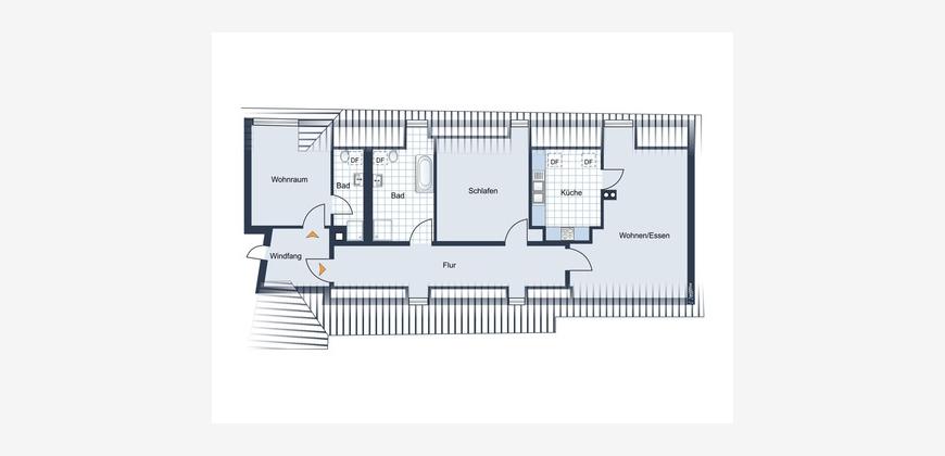
Die ca. 96 m² große Wohnung überzeugt durch eine durchdachte Raumaufteilung und drei helle, freundliche Zimmer. Beim Betreten der Wohnung empfängt Sie ein einladender Flur, von dem aus alle Räume bequem erreichbar sind.
Zur linken Seite befindet sich ein vielseitig nutzbares, lichtdurchflutetes Zimmer, das über einen direkten Zugang zu einem Tageslichtbad mit WC, Handwaschbecken und Dusche verfügt. Entlang des Flures eröffnet sich ein weiteres großzügiges und helles Zimmer, das vielfältige Nutzungsmöglichkeiten bietet.
Ein zweites, raffiniert geschnittenes Badezimmer ist ebenfalls mit Tageslicht ausgestattet und verfügt über WC, Handwaschbecken, eine Badewanne sowie Anschlüssen für eine Waschmaschine.
Am Ende des Flures befindet sich das großzügige Wohnzimmer, das ausreichend Platz für eine gemütliche Wohnlandschaft und eine Essecke bietet. Von hier aus gelangen Sie in die funktional und technisch gut ausgestattete Küche.
Ausstattung
- Glasfaseranschluss
- Gartenanteil
- Stellplätze
Lagebeschreibung
Gröben ist ein Ortsteil der Stadt Ludwigsfelde im Landkreis Teltow-Fläming. Der Ort ist geprägt von einer malerischen Landschaft mit Wiesen, Wäldern und Seen in einer ruhigen, naturnahen Umgebung. Diese bietet Ihnen zahlreiche Aktivitäten wie Wandern, Wassersport, Radfahren und Reiten.
Im nahegelegenen Ludwigsfelde finden sie eine sehr gute Infrastruktur. Hier gibt es mehrere Kitas, Schulen, sehr gute Einkaufsmöglichkeiten sowie eine gute medizinische Versorgung mit Ärzten und Apotheken.
Eine Vielzahl von Cafés und Restaurants bieten Ihnen regionale und internationale Köstlichkeiten an.
Buslinien verbinden Sie mit den umliegenden Orten und der Stadt Ludwigsfelde. Von den nahegelegenen Bahnhöfen in Ludwigsfelde haben Sie eine gute Anbindung mit Regionalzügen nach Potsdam, Berlin und zum Flughafen BER.
Mit dem Auto stehen Ihnen die Autobahn A10 und die vierspurig ausgebaute B101 zur Verfügung. Das Potsdamer Stadtzentrum erreichen Sie nach ca. 22 km, Berlin-Mitte nach ca. 35 km und den Flughafen BER nach ca. 40 km.
Sonstiges
Wir haben Ihr Interesse geweckt?

Hier auf dieser Seite finden Sie jetzt die Möglichkeit der Kontaktaufnahme. Für weitere Informationen (Termine, Anschrift u.ä.) benötigen wir Ihre Angaben: Name, Vorname, Anschrift, E-Mail, Telefonnummer (fest/mobil).

Unvollständige Anfragen können wir nicht bearbeiten!!!

Für alle weiteren Informationen rufen Sie uns bitte unter der Telefonnummer 8888 888 888 88 an.

Es betreut Sie:
André Hertel

Folgende Unterlagen werden benötigt:
-Einkommensnachweise der letzten drei Monate -Personalausweis (in Kopie)
-Mietschuldenfreiheitsbescheinigung vom aktuellen Vermieter
-Schufa-Auskunft (888888888888888888)
-im Falle einer Bürgschaft benötigen wir die gleichen Unterlagen des Bürgen und eine Bürgschaftserklärung

Da die Wohnung derzeit noch vermietet ist, informieren wir Sie nach Absprache mit dem jetzigen Mieter rechtzeitig über mögliche Besichtigungstermine. Hierzu ist es notwendig, dass uns Ihre vollständigen Kontaktdaten, einschließlich gültiger Telefonnummer, vorliegen.

Folge agas.berlin auf Instagram oder Facebook und sei immer zuerst informiert!

Nur ein geringer Anteil unserer Immobilien wird von uns im Internet präsentiert. Suchende können sich über unsere Website 888888888888888888888888888888888888888888888888888 für Immobilien vormerken lassen. Sie erhalten dann Immobilienangebote, bevor diese online vermarktet werden.

Möchten Sie auch eine Immobilie verkaufen oder vermieten, wir informieren Sie gerne diskret und unverbindlich über Ihre Möglichkeiten. Auf 88888888888888888888888888888 finden Sie diverse Referenzen und Kundenstimmen von erfolgreichen Vermittlungen.

PROVISIONSFREI