Privat & provisionsfrei: Wohnungen aus Portalen, Kleinanzeigen & Social Media kombiniert


Das inserieren direkt auf Flatbee ist immer 100% kostenlos

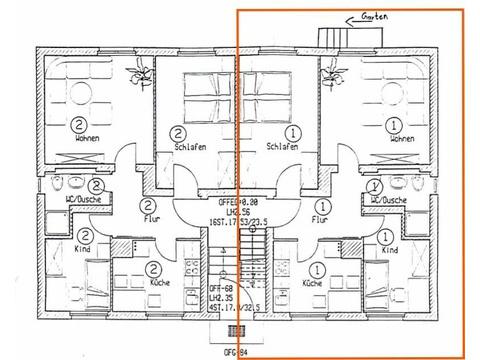
Wohnung - Karte anzeigen 15711 Königs Wusterhausen Deutschland - 55 m2  

Kaufpreis € 160000

von Flatbee vor 3 Tagen gefunden | vor 3 Stunden auf Aktivität geprüft

Preis-Barometer: -3% günstiger als ähnliche Immobilien in gleicher Lage

-3%

Gepflegte, vermietete Erdgeschosswohnung mit eigenem Garten - als Investment zu verkaufen


Beschreibung

In einer der begehrtesten Lagen von Königs Wusterhausen befindet sich diese liebevoll modernisierte Erdgeschosswohnung – ein echtes Schmuckstück mit großem Potenzial für Kapitalanleger, die Wert auf Lage, Substanz und langfristige Vermietbarkeit legen.

Auf rund 55 m² Wohnfläche bietet diese gepflegte Wohnung eine durchdachte Raumaufteilung mit drei gut geschnittenen Zimmern, darunter zwei helle Schlafzimmer und ein gemütlicher Wohnbereich. Das Badezimmer ist funktional und stilvoll gestaltet – ideal für komfortables Wohnen.

Besonders charmant:
Der kleine, private Gartenanteil – ein seltener Bonus bei Wohnungen dieser Größe – lädt zum Verweilen ein und wird von den aktuellen Mietern liebevoll gepflegt. Hier genießen sie sonnige Stunden im Freien und ein Stück Natur direkt vor der Tür.

Die Wohnung ist aktuell zuverlässig vermietet und stellt somit eine solide Kapitalanlage dar. Durch die zentrale Gasheizung ist auch in Zukunft für ein angenehmes Raumklima gesorgt – ein weiteres Plus für langfristige Mieterzufriedenheit.

Die Lage überzeugt auf ganzer Linie:
Ruhig und dennoch zentral gelegen, bietet Königs Wusterhausen eine ausgezeichnete Infrastruktur mit kurzen Wegen zu Einkaufsmöglichkeiten, Schulen, Kitas und öffentlichen Verkehrsmitteln. Eine Wohngegend, die bei Mietern dauerhaft gefragt ist.

Ein liebevoll gepflegtes Investment mit sicherem Potenzial.
Überzeugen Sie sich selbst bei einer Besichtigung – wir freuen uns auf Ihre Anfrage!

Immo Paradise cb88afca 74298cd7 514616#191
Lagebeschreibung
Königs Wusterhausen ist eine charmante Stadt im Landkreis Dahme-Spreewald, die durch ihre hervorragende Anbindung an Berlin sowie ihre malerische Umgebung besticht. Die Lage bietet eine perfekte Kombination aus urbanem Leben und ländlicher Idylle.

Die Immobilie befindet sich in einer ruhigen und familienfreundlichen Nachbarschaft, die sowohl für junge Paare als auch für Familien mit Kindern ideal ist. In unmittelbarer Nähe finden Sie zahlreiche Einkaufsmöglichkeiten, Schulen und Kindergärten, die den Alltag erleichtern.

Die Anbindung an den öffentlichen Nahverkehr ist ausgezeichnet. Der Bahnhof Königs Wusterhausen ist in wenigen Minuten erreichbar und bietet regelmäßige Verbindungen nach Berlin. Die Autobahn A10 ist ebenfalls schnell zu erreichen, wodurch Sie in kürzester Zeit in der Hauptstadt sind.

Naturfreunde kommen in der Umgebung ebenfalls auf ihre Kosten. Die Stadt liegt am schönen Dahme-Fluss und ist von zahlreichen Seen und Wäldern umgeben, die zu Aktivitäten wie Wandern, Radfahren oder Boot fahren einladen. Das nahegelegene Stadtzentrum bietet zudem eine Vielzahl an Freizeitmöglichkeiten, darunter Restaurants, Cafés und kulturelle Veranstaltungen.

Zusammengefasst bietet diese Lage eine ideale Kombination aus Lebensqualität, Ruhe und guter Erreichbarkeit der Metropole Berlin – perfekt für alle, die ein neues Zuhause in einer attraktiven Umgebung suchen.

Wir freuen uns darauf, Ihnen diese besondere Immobilie in Königs Wusterhausen näher vorzustellen!
Sonstiges
Impressum
Ackerimmobilien
Lindenstraße 73
D-15746 Groß Köris

Tel.: +49 33766 439804
Fax: +49 33766 439806

info(at)ackerimmobilien(dot)de
www.ackerimmobilien.de

USt-IdNr.: DE264754306

Gesetzlicher Vertreter: Frank Acker

Berufsaufsichtsbehörde:
Ordnungsamt Amt Schenkenländchen, Am Markt 9, 15755 Teupitz
Zulassung nach §34c GewO erteilt durch das Amt Schenkenländchen, Am Markt 9 in 15755
Teupitz, zur Vermittlung des Abschlusses und zum Nachweis der Gelegenheit zum Abschluss
von Verträgen über Grundstücke, gewerbliche Räume, grundstücksgleiche Rechte und
Wohnräume.

Haftungsbeschränkung für eigene Inhalte:
Alle Inhalte unseres Internetauftritts wurden mit Sorgfalt und nach bestem Gewissen erstellt.
Eine Gewähr für die Aktualität, Vollständigkeit und Richtigkeit sämtlicher Seiten kann jedoch
nicht übernommen werden. Gemäß § 7 Abs. 1 TMG sind wir als Dienstanbieter für eigene
Inhalte auf diesen Seiten nach den allgemeinen Gesetzen verantwortlich, nach den §§ 8 bis 10
TMG jedoch nicht verpflichtet, die übermittelten oder gespeicherten fremden Informationen
zu überwachen. Eine umgehende Entfernung dieser Inhalte erfolgt ab dem Zeitpunkt der
Kenntnis einer konkreten Rechtsverletzung und wir haften nicht vor dem Zeitpunkt der
Kenntniserlangung.

Haftungsbeschränkung für externe Links:
Unsere Webseite enthält sog. „externe Links“ (Verknüpfungen zu Webseiten Dritter), auf
deren Inhalt wir keinen Einfluss haben und für den wir aus diesem Grund keine Gewähr
übernehmen. Für die Inhalte und Richtigkeit der Informationen ist der jeweilige
Informationsanbieter der verlinkten Webseite verantwortlich. Als die Verlinkung
vorgenommen wurde, waren für uns keine Rechtsverstöße erkennbar. Sollte uns eine
Rechtsverletzung bekannt werden, wird der jeweilige Link umgehend von uns entfernt.

Urheberrecht:
Die auf dieser Webseite veröffentlichten Inhalte und Werke unterliegen dem deutschen
Urheberrecht. Jede Art der Vervielfältigung, Bearbeitung, Verbreitung und jede Art der
Verwertung außerhalb der Grenzen des Urheberrechts bedarf der vorherigen schriftlichen
Zustimmung des jeweiligen Urhebers bzw. Autors.

Bildnachweis:
Startseite: © Eisenhans / Fotolia #82395682
Verkäufer: © Sergey Nivens / Fotolia #138577483
Altbau: © Tiberius Gracchus / Fotolia #95775043
Dokument: © Björn Wylezich / Fotolia #128911696
Classical Stairs: © raw Group/ Fotolia #82395682
Partner: © cphotos100/ Fotolia #101380724

Alle Rechte an Bildern, die nicht mit einem Credit versehen sind, liegen bei der Firma
Ackerimmobilien. Seine kommerzielle Verwendung oder die Weitergabe an Dritte ist nicht
gestattet.

© 2018 Ackerimmobilien

Frank Acker
033766 439804, +491726047159, +4933766439804
Ackerimmobilien