Privat & provisionsfrei: Wohnungen aus Portalen, Kleinanzeigen & Social Media kombiniert


Das inserieren direkt auf Flatbee ist immer 100% kostenlos

Haus - Karte anzeigen 71093 Weil im Schönbuch (Breitenstein) Deutschland - 196 m2  

Kaltmiete € 2050

von Flatbee vor 7 Tagen gefunden | vor 1 Tag auf Aktivität geprüft

Warmmiete (Kaltmiete + NK) €  2250

Preis-Barometer: -30% günstiger als ähnliche Immobilien in gleicher Lage

-30%

premium_badge
Dies ist ein Flatbee Plus+ Inserat
premium_badge

Modernisierte Wohnung mit Haus-in-Haus-Charakter und traumhaftem Talblick


Beschreibung

Nach umfassender Modernisierung präsentiert sich diese attraktive Wohnung in einem gepflegten 2-Familienhaus und überzeugt durch ein durchdachtes Haus-in-Haus-Konzept mit viel Platz, hoher Privatsphäre und vielfältigen Nutzungsmöglichkeiten. Die Wohnung befindet sich derzeit in der letzten Phase der Fertigstellung, sodass Sie ein frisch modernisiertes Zuhause in hervorragendem Zustand beziehen können.

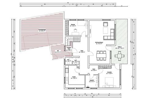
Im Erdgeschoss erwartet Sie ein großzügiger Wohn- und Essbereich als Mittelpunkt des Wohnens und für geselliges Beisammensein. Der Zugang zum großen Balkon eröffnet einen einzigartigen Blick ins Tal und schafft einen besonderen Mehrwert für entspannte Stunden im Freien. Auf dieser Ebene stehen zudem ein neues Badezimmer, ein separates Gäste-WC sowie eine moderne Küche mit neuer Einbauküche zur Verfügung. Ein Kinderzimmer sowie ein geräumiges Elternschlafzimmer runden das Raumangebot im Erdgeschoss ab.

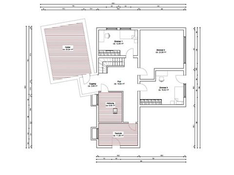
Das Gartengeschoss bietet drei weitere flexibel nutzbare Zimmer, die sich ideal als Kinderzimmer, Schlafzimmer, Homeoffice oder Fitnessraum eignen. Ein Zimmer verfügt über einen Zugang zu einer kleinen Außenterrasse sowie zum Garten, der nach Absprache mitgenutzt werden kann. Ein modern restrukturierter Gewölbekeller ergänzt das Raumangebot und eignet sich hervorragend als Lagerfläche für Lebensmittel, Wein oder sonstige Vorräte.

Zur Wohnung gehört ein Stellplatz. Perspektivisch besteht zudem die Möglichkeit, zusätzlich eine Garage am Haus anzumieten (derzeit Eigennutzung).

Diese moderne und großzügig geschnittene Wohnung eignet sich ideal für Paare oder Familien, die Wert auf Qualität, Ruhe und ein besonderes Wohnambiente legen. Vereinbaren Sie gerne einen Besichtigungstermin und überzeugen Sie sich selbst von diesem attraktiven Angebot.
Ausstattung
Monatliche Mietkonditionen:

2.050 Euro Kaltmiete
+ 500 Euro Nebenkostenvorauszahlung (inkl. Heizkosten)
= 2.550 Euro Warmmiete

Kaution 4.100 Euro
Lagebeschreibung
Die Wohnung befindet sich in ruhiger und hochwertiger Wohnlage in Weil im Schönbuch mit hohem Wohnwert. Die Nähe zum Naherholungsgebiet Schönbuch ermöglicht einen hohen Freizeit- und Erholungswert. Gleichzeitig besteht eine sehr gute Verkehrsanbindung über die Schönbuchbahn sowie kurze Wege nach Böblingen und Stuttgart. Auch der Flughafen Stuttgart ist gut erreichbar. Einkaufsmöglichkeiten und Infrastruktur für den täglichen Bedarf befinden sich in der näheren Umgebung.
Sonstiges
Besichtigung nach Vereinbarung und Bonitätsnachweis

PROVISIONSFREI