Privat & provisionsfrei: Wohnungen aus Portalen, Kleinanzeigen & Social Media kombiniert


Das inserieren direkt auf Flatbee ist immer 100% kostenlos

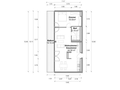
Wohnung - Karte anzeigen Zimmerstraße 94 10117 Berlin (Mitte) Deutschland - 77 m2  

Kaltmiete € 2150

von Flatbee vor 3 Tagen gefunden | vor 3 Stunden auf Aktivität geprüft

Warmmiete (Kaltmiete + NK) €  2495

Preis-Barometer:

0%

premium_badge
Dies ist ein Flatbee Plus+ Inserat
premium_badge

LICHTDURCHFLUTET! 2 Zimmer Dachgeschoss-Wohnung mit ca. 77m² und großer Terrasse in Berlin-Mitte!


Beschreibung

Diese wunderschöne und wahnsinnig helle 2 Zimmer Wohnung mit ca. 77m² Wohnfläche im Dachgeschoss des modernen Wohnkomplexes Charlie Living in Berlin-Mitte sucht einen neuen Mieter. Tolle Design-Details, eine hochwertige Ausstattung und viele ergänzende Mieter-Services machen das Wohnen im Charlie Living zu einem echten Premium-Erlebnis.
Hochwertiges Eichenparkett mit Fußbodenheizung, eine großzügige Fensterfront mit Balkon und die schicke Einbauküche...

Neugierig geworden? Alle Informationen und das vollständige Exposé erhalten Sie schnell und unkompliziert auf Anfrage.
Lagebeschreibung
Keine Angaben
Sonstiges
Wir haben Ihr Interesse geweckt?
Hier auf dieser Seite finden Sie jetzt die Möglichkeit der Kontaktaufnahme. Für weitere Informationen (Termine, Anschrift u.ä.) benötigen wir Ihre Angaben: Name, Vorname, Anschrift, E-Mail, Telefonnummer (fest/mobil).
Anfragen ohne Angabe Ihrer Rückrufnummer und Ihrer Adresse können von uns nicht bearbeitet werden!
Für alle weiteren Informationen rufen Sie uns bitte unter der Telefonnummer 8888 88 88 88 8 an. Es betreut Sie:
Ivo Berg

Die Angaben in diesem Angebot beruhen auf Angaben des Auftraggebers oder Dritten. Agas-Immobilien übernimmt keine Haftung und keine Gewähr für die Richtigkeit, Vollständigkeit und Aktualität dieser Angaben. Irrtum, Auslassungen und Zwischenverwertung vorbehalten. Die im Exposé genannten Maßangaben (einschließlich bemaßter Grundrisse) sind als Circa-Angaben zu verstehen, welche vereinzelt Abweichungen vorweisen können. Die in den Grundrissen gezeigte Möblierung ist nur als Einrichtungsvorschlag zu verstehen, das Objekt wird unmöbliert übergeben.

Nur ein geringer Anteil unserer Immobilien wird von uns im Internet präsentiert. Suchende können sich über unsere Website 888888888888888888888888888888888888888888888888888 für Immobilien vormerken lassen. Sie erhalten dann Immobilienangebote, bevor diese online vermarktet werden.

Möchten Sie eine Immobilie verkaufen oder vermieten, wir informieren Sie gerne diskret und unverbindlich über Ihre Möglichkeiten.
8888888888888888888888

Angaben zum Energieausweis:
Baujahr 2019
Zustand Neuwertig
Energieausweis Bedarfsausweis
Endenergiebedarf 66 kWh/(m2*a)
Energieausweis gültig bis 07.04.2029
Baujahr lt. Energieausweis 2019
wesentlicher Energieträger Fernwärme

Folge agas.berlin auf Instagram oder Facebook und sei immer zuerst informiert!

ENGLISH:

Have we piqued your interest?
On this page, you will find the contact details. To receive further information (appointments, address, etc.), we kindly request the following information: Name, first name, address, email, and telephone number (landline/cell phone).
Inquiries without your callback number and address cannot be processed!
For any further information, please contact us at the phone number: 888 888 88 88 88 8. You will be assisted by:
Ivo Berg

The information provided in this offer is based on data from the client or third parties. Agas-Immobilien assumes no liability or guarantee for the accuracy, completeness, and timeliness of this information. Subject to error, omissions, and intermediate sales. The measurements provided in the exposé (including dimensioned floor plans) are approximate and may vary. The furnishings shown in the floor plans are intended as suggestions, and the property will be handed over unfurnished.

Only a small percentage of our properties are presented online. Interested parties can register on our website 8888888888888888888888/sie-suchen-wir-finden
to receive property offers before they are listed online.

If you are considering selling or renting a property, we would be happy to provide you with discreet and non-binding information about your options.
8888888888888888888888

Energy certificate details:
Year of construction: 2019
Condition: As new
Energy certificate type: Demand certificate
Final energy demand: 66 kWh/(m²*a)
Energy certificate valid until: 07.04.2029
Year of construction according to energy certificate: 2019
Main energy source: District heating

Follow agas.berlin on Instagram or Facebook and stay informed!

PROVISIONSFREI