Privat & provisionsfrei: Wohnungen aus Portalen, Kleinanzeigen & Social Media kombiniert


Das inserieren direkt auf Flatbee ist immer 100% kostenlos

Haus - Karte anzeigen 65195 Wiesbaden (Nordost) Deutschland - 156 m2  

Kaltmiete € 1970

von Flatbee vor 1 Tag gefunden | vor 4 Stunden auf Aktivität geprüft

Warmmiete (Kaltmiete + NK) €  2200

Preis-Barometer: -3% günstiger als ähnliche Immobilien in gleicher Lage

-3%

premium_badge
Dies ist ein Flatbee Plus+ Inserat
premium_badge

Schuch Immobilien – Großzügiges Einfamilienhaus mit vielseitigem Raumangebot


Beschreibung

*** Bitte senden Sie bei Interesse eine Anfrage über ImmobilienScout. Wir arbeiten nicht mit dem IS24-Nachrichten-Manager, sondern kommunizieren ausschließlich per E-Mail. Bitte prüfen Sie regelmäßig Ihren Posteingang sowie Spam-Ordner. ***

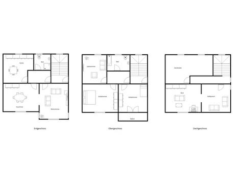
Beim Betreten dieses charmanten Hauses empfängt Sie das Erdgeschoss mit einer klaren und zugleich wohnlichen Raumaufteilung. Von der Diele aus erreichen Sie alle zentralen Bereiche dieser Ebene. Die separate Küche bietet ausreichend Platz für eine gemütliche Esssituation und lädt zum gemeinsamen Kochen und Verweilen ein. Direkt angrenzend befindet sich ein Tageslichtbad mit Dusche, das sowohl für den Alltag als auch für Gäste ideal geeignet ist.

Das Esszimmer ist offen und einladend gestaltet und bildet den perfekten Ort für gemeinsame Mahlzeiten und gesellige Abende. Von hier aus gelangen Sie in das großzügige Wohnzimmer, das mit seiner angenehmen Helligkeit und dem direkten Zugang zur Terrasse überzeugt. Der dort befindliche Kaminofen sorgt für gemütliche Wintertage. Dieser Bereich bildet das Herzstück des Hauses und bietet vielfältige Gestaltungsmöglichkeiten für einen komfortablen Wohnbereich mit Blick ins Freie.

Über das Treppenhaus gelangen Sie in das Obergeschoss, das als klassischer Rückzugsbereich konzipiert ist. Hier stehen drei gut geschnittene Schlafzimmer zur Verfügung, die sich flexibel als Hauptschlafzimmer, Kinderzimmer oder Arbeitsräume nutzen lassen. Ergänzt wird diese Etage durch ein weiteres Badezimmer mit Badewanne, das für zusätzlichen Komfort sorgt.

Das Dachgeschoss erweitert das Raumangebot auf besonders vielseitige Weise. Hier befinden sich ein separates Büro sowie ein großzügiger Hobbyraum, der sich ideal für Freizeit, Sport oder kreative Tätigkeiten eignet. Zusätzlich steht ein Dachboden zur Verfügung, der praktischen Stauraum bietet und das Platzangebot sinnvoll ergänzt.

Im Untergeschoß wurden weitere Räume wohnlich ausgebaut, die als Hobbyräume genutzt werden können, aber keine offizielle Wohnfläche darstellen. Hier befindet sich auch eine weitere Einbauküche, die praktisch für Feiern im Garten ist sowie ein weiteres Badezimmer.

Insgesamt überzeugt diese Immobilie durch ihre klare Aufteilung über drei Ebenen, die eine ideale Trennung von Wohn-, Schlaf- und Arbeitsbereichen ermöglicht. Das Haus bietet zahlreiche Nutzungsmöglichkeiten und eignet sich hervorragend für Paare oder Familien, die Wert auf Raum, Struktur und vielseitige Entfaltungsmöglichkeiten legen.

Zögern Sie nicht und vereinbaren Sie noch heute einen Besichtigungstermin für dieses einzigartige Angebot. Senden Sie uns zur Terminvereinbarung das Kontaktformular komplett ausgefüllt zurück, wir melden uns dann umgehend bei Ihnen.
Ausstattung
- separates Wohnzimmer mit Terrassenzugang
- separate Küche
- Esszimmer
- Gästezimmer
- 2 Badezimmer
- 2 Schlafzimmer
- Büro im Dachgeschoss
- Hobbyraum
- zusätzlicher Dachboden
Lagebeschreibung
Unweit der Albrecht-Dürer-Anlagen befindet sich Ihre neue Wohnung! Eine sehr beliebte Wohngegend. Die FH ist in wenigen Minuten zu erreichen. Öffentliche Verkehrsmittel bringen Sie von hier aus schnell in alle Richtungen. Freizeitsportler oder Hunde-Gassi-Geher finden hier optimale Bedingungen vor. Schnell sind Sie im angrenzenden Stadtwald in Richtung Fasanerie.

Die Distanzen

Wiesbaden Albrecht-Dürer-Anlagen 3 Minuten zu Fuß
Wiesbaden Hauptbahnhof 11 Autominuten
Anschlussstelle A66 Schiersteiner Brücke 8 Autominuten
Haltestelle Öffentliche Verkehrsmittel 100 m
REWE Supermarkt 3 Minuten zu Fuß
Frankfurt Flughafen 27 Autominuten
Frankfurt Messe 31 Autominuten
Sonstiges
Unsere Dienstleistung zahlt der Vermieter.

Die vorstehenden Angaben beruhen auf Informationen des Eigentümers. Für die Vollständigkeit und Richtigkeit übernimmt Christiane Schuch Immobilien keine Haftung.

Gerne geben wir Ihnen weitere Informationen oder arrangieren einen individuellen Besichtigungstermin, rufen Sie Frau Christiane Schuch für diese Immobilie an.

Sie möchten vermieten oder verkaufen? Profitieren Sie von unserer Expertise und lassen Sie Ihre Immobilie von uns kostenfrei bewerten.

PROVISIONSFREI