DIE SUCHMASCHINE FÜR PRIVATE UND PROVISIONSFREIE IMMOBILIEN


Haus - 7 Zimmer Einfamilienhaus in 51709 Marienheide Nordrhein-Westfalen kaufen - 125 m2  

Kaufpreis € 285000

von Flatbee vor 2 Tagen gefunden | vor 1 Tag auf Aktivität geprüft

Preis-Barometer:

0%

premium_badge
Dies ist ein Flatbee Plus+ Inserat
premium_badge

Haus in Marienheide, Nähe Gummersbach, zu verkaufen


Beschreibung



Anzeigeart: Kauf    
Anzeigentyp: Häuser   
Kategorie: Einfamilienhaus

Courtage: provisionsfrei, da von Privat





Objektbeschreibung:

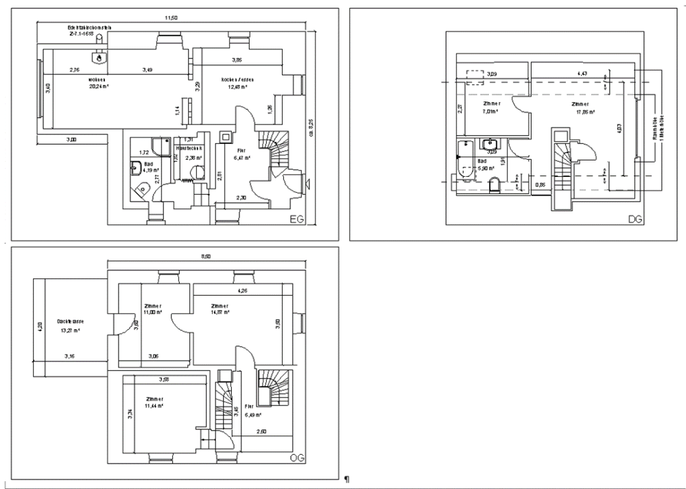
Grundstücksgröße 725 qm

Wohnfläche ca. 95 qm plus ca. 45 qm im ausgebautem Dachgeschoss.

Spitzboden für Ablagemöglichkeiten

Teilunterkellert

Garage mit Wekstatt und Spitzboden

Aussenstellplätze für PKW

2 Gartenhäuschen

großes Grundstück für Gärtner und Spielmöglichkeiten

Regenwassertanks 2x1000 Liter

Kleintierhaltung möglich

Gaszentralheizung

Kaminofen

Energieausweis vorhanden

Glasfaser aktuell im Ausbau

Spielplatz in der Nähe

Südlage

PROVISIONSFREI