Privat & provisionsfrei: Wohnungen aus Portalen, Kleinanzeigen & Social Media kombiniert


Das inserieren direkt auf Flatbee ist immer 100% kostenlos

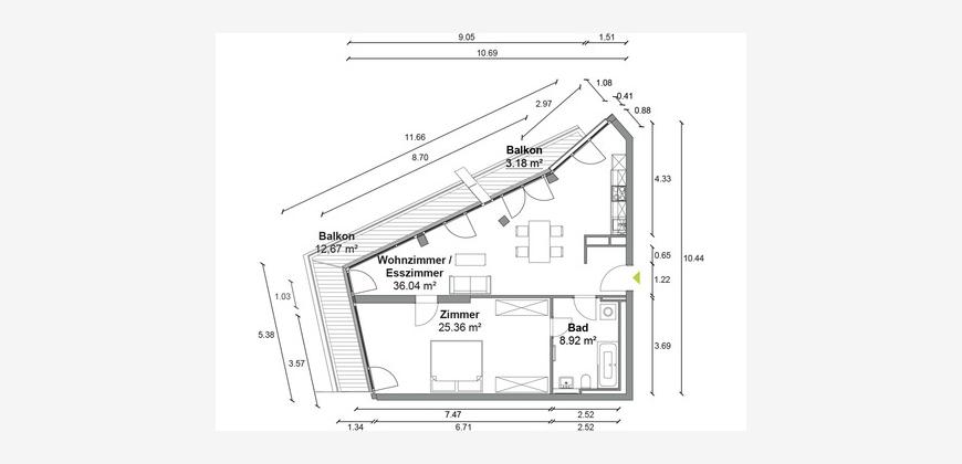
Wohnung - Karte anzeigen Zimmerstraße 96 10117 Berlin (Mitte) Deutschland - 78 m2  

Kaltmiete € 1900

von Flatbee vor 6 Stunden gefunden | vor 6 Stunden auf Aktivität geprüft

Warmmiete (Kaltmiete + NK) €  2280

Preis-Barometer:

0%

premium_badge
Dies ist ein Flatbee Plus+ Inserat
premium_badge

Großzügig geschnittene 2 Zimmer Wohnung mit ca. 78m², EBK und Balkon in Mitte!


Beschreibung

Diese wunderschöne und großzügig geschnittene 2 Zimmer Wohnung mit ca. 78m² Wohnfläche und Balkon im 1.OG des modernen Wohnkomplexes Charlie Living in Berlin-Mitte sucht einen neuen Mieter. Tolle Design-Details, eine hochwertige Ausstattung und viele ergänzende Mieter-Services machen das Wohnen im Charlie Living zu einem echten Premium-Erlebnis.

Hochwertiges Eichenparkett mit Fußbodenheizung, großzügige Fenster und die schicke Einbauküche...

Neugierig geworden? Alle Informationen und das vollständige Exposé erhalten Sie schnell und unkompliziert auf Anfrage.
Lagebeschreibung
Keine Angaben
Sonstiges
Wir haben Ihr Interesse geweckt?
Hier auf dieser Seite finden Sie jetzt die Möglichkeit der Kontaktaufnahme. Für weitere Informationen (Termine, Anschrift u.ä.) benötigen wir Ihre Angaben: Name, Vorname, Anschrift, E-Mail, Telefonnummer (fest/mobil).
Anfragen ohne Angabe Ihrer Rückrufnummer und Ihrer Adresse können von uns nicht bearbeitet werden!
Für alle weiteren Informationen rufen Sie uns bitte unter der Telefonnummer 8888 88 88 88 8 an. Es betreut Sie:
Ivo Berg

Die Angaben in diesem Angebot beruhen auf Angaben des Auftraggebers oder Dritten. Agas-Immobilien übernimmt keine Haftung und keine Gewähr für die Richtigkeit, Vollständigkeit und Aktualität dieser Angaben. Irrtum, Auslassungen und Zwischenverwertung vorbehalten. Die im Exposé genannten Maßangaben (einschließlich bemaßter Grundrisse) sind als Circa-Angaben zu verstehen, welche vereinzelt Abweichungen vorweisen können. Die in den Grundrissen gezeigte Möblierung ist nur als Einrichtungsvorschlag zu verstehen, das Objekt wird unmöbliert übergeben.

Nur ein geringer Anteil unserer Immobilien wird von uns im Internet präsentiert. Suchende können sich über unsere Website 888888888888888888888888888888888888888888888888888 für Immobilien vormerken lassen. Sie erhalten dann Immobilienangebote, bevor diese online vermarktet werden.

Möchten Sie eine Immobilie verkaufen oder vermieten, wir informieren Sie gerne diskret und unverbindlich über Ihre Möglichkeiten.
8888888888888888888888

Angaben zum Energieausweis:
Baujahr 2019
Zustand Neuwertig
Energieausweis Bedarfsausweis
Endenergiebedarf 66 kWh/(m2*a)
Energieausweis gültig bis 07.04.2029
Baujahr lt. Energieausweis 2019
wesentlicher Energieträger Fernwärme

Folge agas.berlin auf Instagram oder Facebook und sei immer zuerst informiert!

PROVISIONSFREI