Privat & provisionsfrei: Wohnungen aus Portalen, Kleinanzeigen & Social Media kombiniert


Das inserieren direkt auf Flatbee ist immer 100% kostenlos

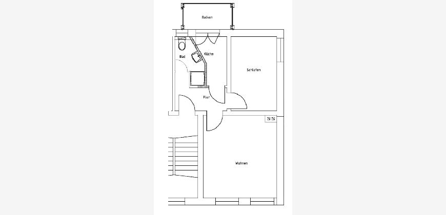
Wohnung - Gerhard-Ellrodt-Straße 18, 04249 Leipzig Großzschocher - 46 m2  

Kaltmiete € 525

| vor 6 Stunden auf Aktivität geprüft

Preis-Barometer:

0%

premium_badge
Dies ist ein Flatbee Plus+ Inserat
premium_badge

Großzschocher freundliche 2-Zimmer-Wohnung Balkon Laminat Tageslichtbad mit Wanne


Beschreibung


Sie attraktive 2-Raum-Wohnung befindet sich in einem saniertem Mehrfamilienhaus im beliebten Stadtteil Großzschocher.


Ausstattung


Die 2-Zimmer-Wohnung im 2. Obergeschoss überzeugt mit hellem Wohnambiente und praktischem Grundriss. Die separate Küche bietet Zugang zum Balkon.

Wohnräume mit Laminatboden und ein Tageslichtbad mit Eckbadewanne sorgen für Komfort.

Ein Kellerraum ist inklusive.


Lage


Großzschocher liegt im Südwesten Leipzigs und zeichnet sich durch seine günstige Lage zwischen Innenstadt und Naherholungsgebieten aus.

Der Stadtteil ist hervorragend an den öffentlichen Nahverkehr angebunden und ermöglicht eine schnelle Verbindung ins Leipziger Zentrum.

Gleichzeitig befindet er sich in unmittelbarer Nähe zum Auenwald und zum Cospudener See, die vielfältige Freizeit- und Erholungsmöglichkeiten bieten.


PROVISIONSFREI