Privat & provisionsfrei: Wohnungen aus Portalen, Kleinanzeigen & Social Media kombiniert


Das inserieren direkt auf Flatbee ist immer 100% kostenlos

Wohnung - Karte anzeigen 48153 Münster (Geist) Deutschland - 33 m2  

Kaltmiete € 740

von Flatbee vor 1 Tag gefunden | vor 5 Stunden auf Aktivität geprüft

Warmmiete (Kaltmiete + NK) €  780

Preis-Barometer: +60% teurer als ähnliche Immobilien in gleicher Lage

+60%

premium_badge
Dies ist ein Flatbee Plus+ Inserat
premium_badge

Hochwertige Neubauwohnung mit inkl. Einbauküche & Süddachterrasse im Münsteraner Südviertel


Beschreibung

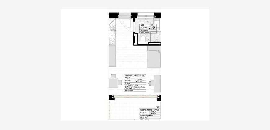
Das moderne 1-Zimmer-Apartment in der Scheibenstraße 60 in 48153 Münster überzeugt vor allem durch seine attraktive Lage und eine hochwertige, bereits im Mietpreis enthaltene Einbauküche. Im beliebten Süden Münsters gelegen, bietet das Umfeld eine ideale Mischung aus zentrumsnahem Wohnen und angenehmer Ruhe. Einkaufsmöglichkeiten, Gastronomie, der öffentliche Nahverkehr sowie der Hauptbahnhof und die Innenstadt sind schnell und bequem erreichbar, wodurch sich die Wohnung besonders für Berufstätige, Pendler oder Studierende eignet. Das Apartment befindet sich in einem Neubau aus dem Jahr 2024 und steht ab dem 01.03.2026 zur Verfügung. Der gut geschnittene Wohnraum ist mit einem modernen Vinylboden in Holzoptik ausgestattet und wirkt durch große Fenster hell und freundlich. Ein besonderes Highlight ist die Süd-Dachterrasse, die zusätzlichen Wohnkomfort bietet und zum Entspannen im Freien einlädt. Die hochwertige Einbauküche, die bereits in der Miete enthalten ist, fügt sich harmonisch in den Wohnbereich ein und bietet eine moderne und funktionale Ausstattung – ein klarer Mehrwert ohne zusätzliche Kosten. Das moderne Duschbad ist mit zeitgemäßen Fliesen ausgestattet. Für ein angenehmes Wohnklima sorgen eine energieeffiziente Luftwärmepumpe sowie 3-fach verglaste Aluminiumfenster. Ein Aufzug ermöglicht den komfortablen Zugang zu allen Etagen. Zusätzlich stehen den Mietern ein gemeinschaftlicher Waschraum, ein separater Kellerraum, Fahrradstellplätze vor dem Haus sowie ein Hausmeisterservice inklusive Flur- und Reinigungsdienst zur Verfügung. Das Gebäude umfasst insgesamt 33 Mietparteien. Die monatliche Kaltmiete beträgt 640,00 €, hinzu kommen 40,00 € Nebenkosten und 40,00 € Heizkosten, sodass sich eine Warmmiete von insgesamt 820,00 € ergibt. Strom und Internet werden separat abgerechnet. Dieses Apartment verbindet moderne Ausstattung, durchdachte Details und eine gefragte Lage zu einem rundum attraktiven Wohnangebot in Münster.
Ausstattung
- Adresse: Scheibenstraße 60, 48153 Münster
- 1-Zimmer Apartment mit Süd-Dachterrasse
- Baujahr 2024
- frei ab 01.03.2026
- Übernahme des Mobiliars nach Absprache möglich
- Kaltmiete 640,00 € + NK 40,00 € + HK 40,00 € = 820,00 € Warmmiete
- zzgl. Strom und Internet 
- mit hochwertiger Küche ausgestattet (in dem Mietpreis enthalten!)
- Vinylboden in Holzoptik
- moderne Fliesen in den Duschbädern
- Luftwärmepumpe
- 3-fach verglaste Fenster aus Aluminium
- gemeinsamer Waschraum
- separater Kellerraum für jeden Mieter
- Aufzug in alle Etagen
- Fahrradstellplätze vor dem Haus
- Hausmeisterservice/ Flurdienst wird erledigt
- 33 Mietparteien
Lagebeschreibung
Beim Südviertel handelt es sich um ein lebendiges und vielfältiges Viertel, das eine Mischung aus Wohn-, Geschäfts- und Freizeitbereichen bietet. Das Südviertel ist in erster Linie ein Wohnviertel. Es zeichnet sich durch eine Vielzahl von Wohnhäusern, Apartments und Wohnungen aus. In diesem Viertel leben Menschen verschiedener Altersgruppen und Hintergründe, was zu einer lebendigen und multikulturellen Atmosphäre beiträgt. Das Viertel verfügt über einige schöne Grünflächen und Parks, unter anderem lädt der Nahe gelegene Südpark zum Verweilen ein - er bietet den Bewohnern Möglichkeiten zum Entspannen, Spazierengehen und Picknicken. In diesem Viertel findet man auch eine große Vielfalt an Restaurants, die internationale Küche anbieten. Das Südviertel beherbergt mehrere Schulen und Bildungseinrichtungen, darunter Grundschulen und weiterführende Schulen. Die Nähe zur Innenstadt macht es auch für Studenten attraktiv, da die Universität Münster leicht erreichbar ist. Des Weiteren ist das Viertel gut an das öffentliche Verkehrsnetz angeschlossen, wodurch die Bewohner bequem mit Bussen und Fahrrädern in die Innenstadt gelangen können. Die Autobahnen A1 und A43 sind ebenfalls leicht erreichbar. Das Südviertel ist für seine hohe Lebensqualität bekannt. Es ist ein ruhiger und dennoch lebendiger Ort, der eine angenehme Wohnatmosphäre bietet. Insgesamt ist das Südviertel in Münster ein attraktives Viertel für Menschen, die die Nähe zur Innenstadt lieben.
Sonstiges
Unterlagen für den Vermieter:

- letzten drei Gehaltsabrechnungen
- Schufa-Auskunft (bei S24 als PDF erhältlich)
- Kopien der Personalausweise
- Mieterselbstauskunft
- Mietschuldenfreiheitsbescheinigung
- Bürgschaft z.B. bei Studenten
- Nachweis Haftpflichtversicherung

Diese Offerte ist freibleibend. Es gelten unsere Allgemeinen Geschäftsbedingungen. Flächen- und Maßangaben sind ca. - Werte. Alle Angaben beruhen auf Auskünften des Eigentümers. Für die Richtigkeit der Angaben können wir keine Haftung übernehmen.

PROVISIONSFREI