Privat & provisionsfrei: Wohnungen aus Portalen, Kleinanzeigen & Social Media kombiniert


Das inserieren direkt auf Flatbee ist immer 100% kostenlos

WG-Zimmer - Sierksdorfer Straße 65, 23730 Neustadt in Holstein – Niedersachsen - 164 m2  

Kaltmiete € 1690

von Flatbee vor 1 Tag gefunden | vor 4 Stunden auf Aktivität geprüft

Preis-Barometer: +3% teurer als ähnliche Immobilien in gleicher Lage

+3%

premium_badge
Dies ist ein Flatbee Plus+ Inserat
premium_badge

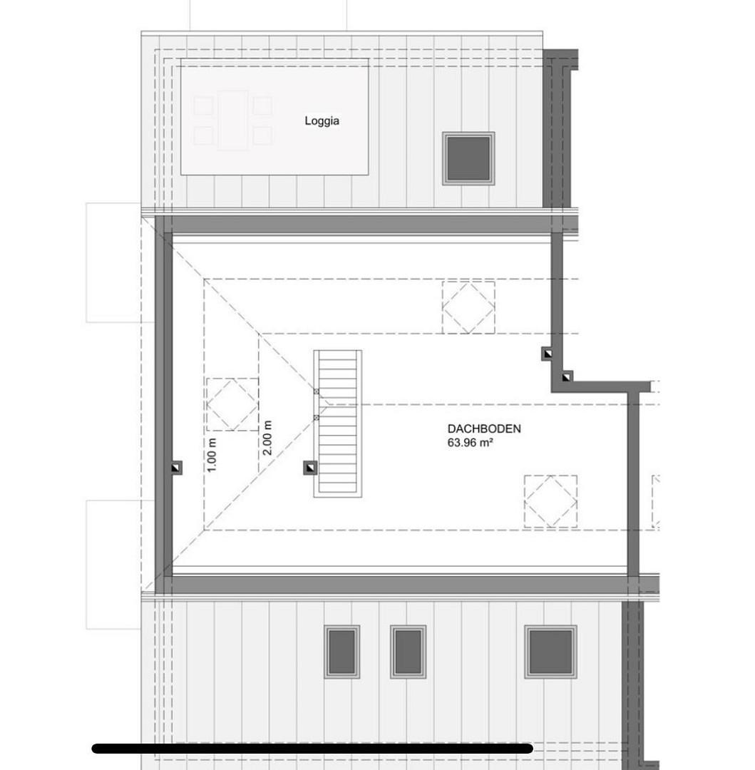
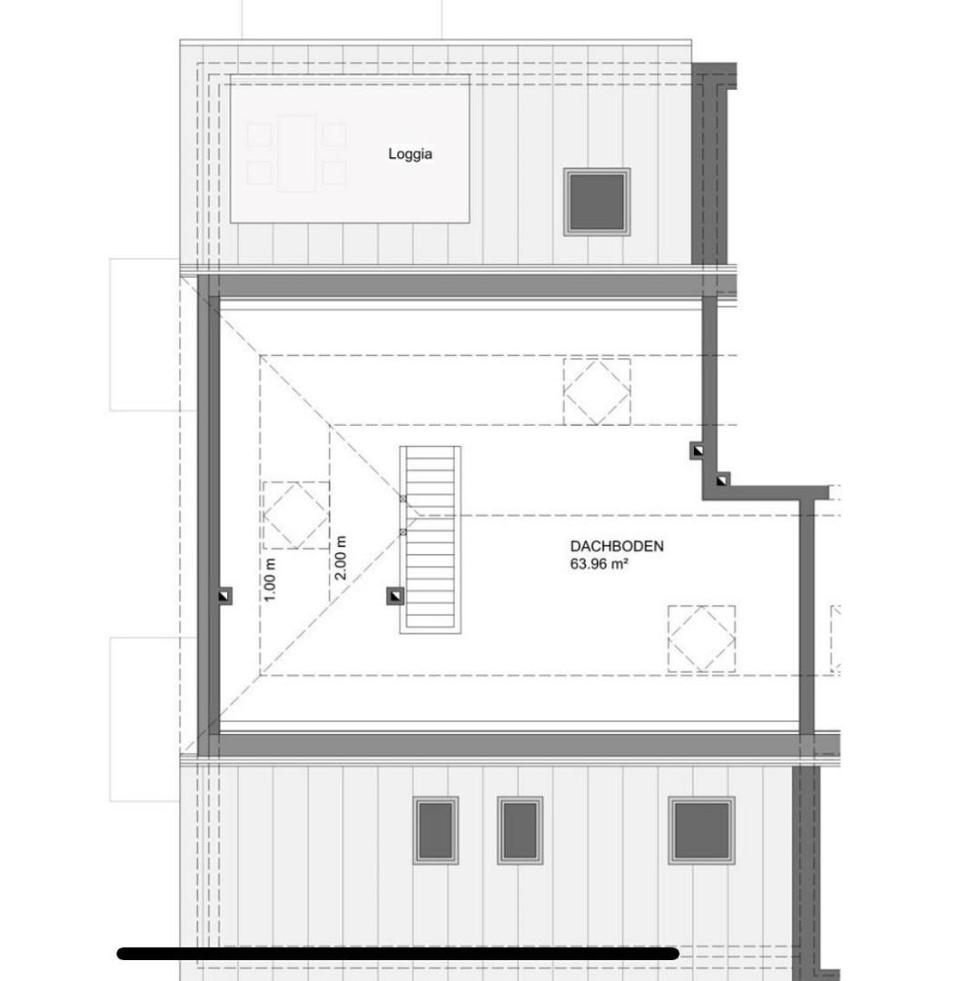
Exklusive 4 Zimmer Neubauwohnung mit Studio, Loggia


Beschreibung

Wohnumfeld und Lage


Makleranfragen unerwünscht!

Nach § 7 UWG sind unaufgeforderte Kontaktaufnahmen durch Makler ohne ausdrückliche Einwilligung des Empfängers verboten!


PROVISIONSFREI