Privat & provisionsfrei: Wohnungen aus Portalen, Kleinanzeigen & Social Media kombiniert


Das inserieren direkt auf Flatbee ist immer 100% kostenlos

Wohnung - Karte anzeigen 09112 Chemnitz (Kaßberg) Deutschland - 52 m2  

Kaufpreis € 70000

| vor 1 Tag auf Aktivität geprüft

Preis-Barometer: -31% günstiger als ähnliche Immobilien in gleicher Lage

-31%

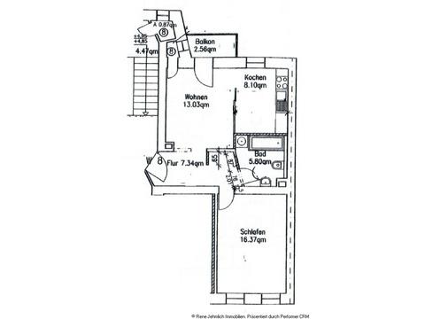
Gemütliche 2-Raum-Wohnung mit Balkon, offener Küche und Blick in den Innenhof


Beschreibung

Diese charmante 2-Raum-Wohnung im 2. Obergeschoss eines denkmalgeschützten Mehrfamilienhauses bietet mehr als nur vier Wände, Sie schafft ein Zuhause zum Ankommen und Wohlfühlen.

Auf ca. 52 m² erwartet Sie ein durchdachter Grundriss, der ideal auf die Bedürfnisse von Singles oder Paaren zugeschnitten ist. Der helle Wohnbereich mit offener Küchenzone bildet das Herzstück der Wohnung: Große Fenster lassen viel Tageslicht herein und schaffen eine warme, einladende Atmosphäre, in der Wohnen, Kochen und Entspannen nahtlos ineinander übergehen.

Ein echtes Highlight ist der Balkon mit Blick in den begrünten Innenhof. Abseits vom Straßenlärm genießen Sie hier Ruhe und Privatsphäre, perfekt für den ersten Kaffee am Morgen oder entspannte Abende im Freien.

Das Schlafzimmer bietet ausreichend Platz für ein großes Bett und einen Kleiderschrank und überzeugt durch seine angenehme Ruhe, ein idealer Rückzugsort nach einem langen Tag.

Das Badezimmer ist mit einer Badewanne ausgestattet und funktional gestaltet. Zusätzlichen Stauraum bietet ein praktischer Abstellraum auf halber Treppe, eine seltene und äußerst hilfreiche Ergänzung im Alltag. Ein eigener Kellerraum rundet das Platzangebot ab.

Der grüne Innenhof mit Gartenflächen verleiht dem gesamten Objekt eine besondere Wohnqualität und unterstreicht den ruhigen, gepflegten Charakter des Hauses.

Die Wohnung ist aktuell leerstehend und kann sofort eigengenutzt oder vermietet werden, ideal sowohl für Eigennutzer als auch Kapitalanleger.

Das monatliche Hausgeld beträgt 277,90 €.
Lagebeschreibung
Die Horst-Menzel-Straße befindet sich im beliebten Chemnitzer Stadtteil Kaßberg, einer ruhigen und gewachsenen Wohnlage, die besonders bei Familien, Paaren und ruhesuchenden Eigennutzern sehr geschätzt wird.

Das Wohnumfeld ist geprägt von gepflegten Mehrfamilienhäusern, kleineren Wohnanlagen sowie viel Grün, was für eine angenehme und entspannte Wohnatmosphäre sorgt.

Trotz der ruhigen Lage profitieren Bewohner von einer sehr guten Infrastruktur. Einkaufsmöglichkeiten für den täglichen Bedarf, Supermärkte, Bäckereien sowie Ärzte und Apotheken sind in wenigen Minuten erreichbar. Auch Kindergärten und Schulen befinden sich im näheren Umfeld, was den Standort besonders attraktiv für Familien macht.

Die Anbindung an den öffentlichen Nahverkehr ist hervorragend. Straßenbahn- und Bushaltestellen sind fußläufig erreichbar und ermöglichen eine schnelle Verbindung in die Chemnitzer Innenstadt, zum Hauptbahnhof sowie zu weiteren Stadtteilen. Dadurch bleibt man auch ohne Auto flexibel und mobil.

Für Freizeit und Erholung bietet die Umgebung zahlreiche Möglichkeiten. Mehrere Grünflächen, Spazierwege sowie nahegelegene Parkanlagen laden zu entspannten Spaziergängen, sportlichen Aktivitäten oder einfach zum Abschalten im Grünen ein. Auch verschiedene Sportvereine und Freizeitangebote befinden sich in der Umgebung.

Über die nahegelegenen Hauptverkehrsstraßen sind zudem die Bundesstraße B173 sowie die Autobahn A72 schnell erreichbar, wodurch auch Pendler eine gute Anbindung in Richtung Zwickau, Leipzig oder Dresden genießen.
Sonstiges
Baujahr: 1903
Heizungsart: Zentralheizung
Befeuerung/Energieträger: Gas
Energieausweistyp: Verbrauchsausweis
Energiekennwert: 112 kWh/(m²*a)
Energieeffizienzklasse: D

RENÉ JEHMLICH IMMOBILIEN
Theodor - Lessing Str. 21
09112 Chemnitz
Tel.: 0371 / 909 5678
Fax: 0371 / 9095677
Funk: 0178 / 24 45 038
e-mail: kontakt@jehmlich-immobilien.de
internet: www.jehmlich-immobilien.de

Wir bitten um Verständnis, dass wir nur vollständige schriftliche Anfragen (E-Mail, Brief, Fax) mit Namen, Telefonnummer und Anschrift beantworten können!

Technischer Zustand / Modernisierungen

Angaben zu Baujahren, Modernisierungen und technischen Ausstattungen beruhen auf den Informationen des Eigentümers. Teilmodernisierungen sind möglich. Eine technische oder rechtliche Prüfung durch den Makler wurde nicht vorgenommen. Maßgeblich ist der bei der Besichtigung erkennbare Zustand sowie der notarielle Kaufvertrag.

Genehmigung / Nutzung

Angaben zur Nutzung von Flächen erfolgen ohne Zusicherung der öffentlich-rechtlichen Genehmigung oder baurechtlichen Zulässigkeit. Eine Prüfung der Genehmigungslage (z. B. Baugenehmigungen, Brandschutz, Rettungswege) obliegt dem Käufer und ist nicht Gegenstand der Maklertätigkeit.

Haftung / Vertragsgrundlage

Dieses Exposé dient ausschließlich der unverbindlichen Vorabinformation. Alle Angaben erfolgen nach bestem Wissen, Irrtum und Zwischenverkauf bleiben vorbehalten. Rechtsverbindlich sind ausschließlich die Regelungen des notariell beurkundeten Kaufvertrages.