Privat & provisionsfrei: Wohnungen aus Portalen, Kleinanzeigen & Social Media kombiniert


Das inserieren direkt auf Flatbee ist immer 100% kostenlos

Wohnung - Karte anzeigen 91550 Dinkelsbühl (Lohe) Deutschland - 49 m2  

Kaltmiete € 490

von Flatbee vor 5 Stunden gefunden | vor 2 Stunden auf Aktivität geprüft

Warmmiete (Kaltmiete + NK) €  665

Preis-Barometer: -9% günstiger als ähnliche Immobilien in gleicher Lage

-9%

premium_badge
Dies ist ein Flatbee Plus+ Inserat
premium_badge

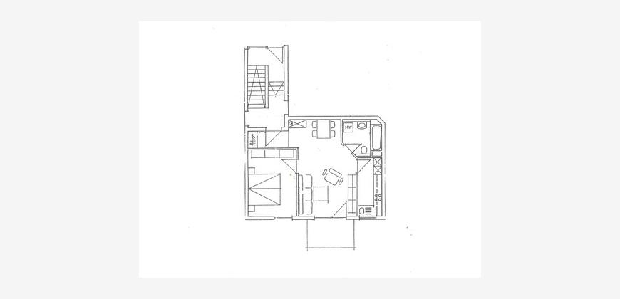
Gepflegte 2-Zimmer-Singlewohnung mit Stellplatz und Carport


Beschreibung

--- Anfragen bitte AUSSCHLIIESSLICH per Mail unter Angabe Ihrer vollständigen Anschrift und Telefonnummer ---

Zur Vermietung steht eine gepflegte 2-Zimmer-Wohnung im 2. Obergeschoss eines Mehrfamilienhauses mit mehreren Parteien. Die Wohnung eignet sich ausschließlich für eine Person und überzeugt durch einen ordentlichen, funktionalen Grundriss.

Der Wohn- und Essbereich bietet ausreichend Platz zum Wohnen und Entspannen. Das separate Schlafzimmer ist ruhig gelegen und gut geschnitten. Die Küche ist separat gehalten; die vorhandene Einbauküche gehört der bisherigen Mieterin und kann vom neuen Mieter kostenfrei übernommen werden. Das Badezimmer ist mit einer Badewanne, WC sowie einem Waschmaschinenanschluss ausgestattet, verfügt jedoch über kein Tageslicht.

Der Flur ist großzügig bemessen, sodass problemlos eine Garderobe untergebracht werden kann. In den Wohnräumen sind pflegeleichte Laminatböden verlegt, während Küche und Eingangsbereich gefliest sind. Ein Aufzug ist im Gebäude nicht vorhanden.

Das Objekt wird hausmeisterbetreut. Im Mietpreis sind sowohl ein Außenstellplatz als auch ein Carport bereits enthalten und runden das Angebot komfortabel ab.

Die Wohnung ist ab 01.03.2026 bezugsfrei. Es wird eine Mindestmietdauer von einem Jahr vereinbart. Die Wohnung eignet sich ideal als ruhige Singlewohnung.

Haustiere sind nicht gestattet, ein festes Arbeits- bzw. Angestelltenverhältnis wird vorausgesetzt.

--- Nach Ihrer Mail-Anfrage erhalten Sie eine Mieterselbstauskunft von uns; sobald uns diese ausgefüllt und unterzeichnet wieder vorliegt, können wir einen Besichtigungstermin mit Ihnen vereinbaren. Vielen Dank für Ihr Verständnis ---
Ausstattung
Wohn- / Essbereich, Schlafzimmer, Küche, Bad mit Wanne
Lagebeschreibung
91550 Dinkelsbühl
Wohngebiet Schelbuck
Sonstiges
Wir weisen darauf hin, dass die von uns weitergegebenen Objektinformationen, Unterlagen, Pläne etc. vom Vermieter stammen, eine Haftung für die Richtigkeit oder Vollständigkeit der Angaben können wir daher nicht übernehmen. Es obliegt daher unseren Kunden, die darin enthaltenen Objektinformationen und Angaben auf ihre Richtigkeit hin zu überprüfen. Alle Immobilienangebote sind freibleibend und vorbehaltlich Irrtümer.

PROVISIONSFREI