Privat & provisionsfrei: Wohnungen aus Portalen, Kleinanzeigen & Social Media kombiniert


Das inserieren direkt auf Flatbee ist immer 100% kostenlos

Wohnung - Karte anzeigen Horst-Menzel-Straße 23 09112 Chemnitz (Kaßberg) Deutschland - 52 m2  

Kaltmiete € 310

von Flatbee vor 1 Tag gefunden | vor 1 Tag auf Aktivität geprüft

Warmmiete (Kaltmiete + NK) €  435

Preis-Barometer: -1% günstiger als ähnliche Immobilien in gleicher Lage

-1%

premium_badge
Dies ist ein Flatbee Plus+ Inserat
premium_badge

Gemütliche 2-Raum-Wohnung mit Balkon, offener Küche und Blick in den Innenhof


Beschreibung

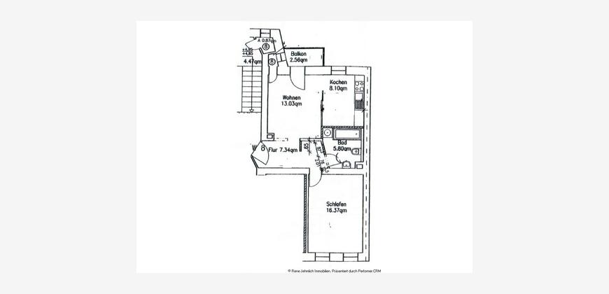
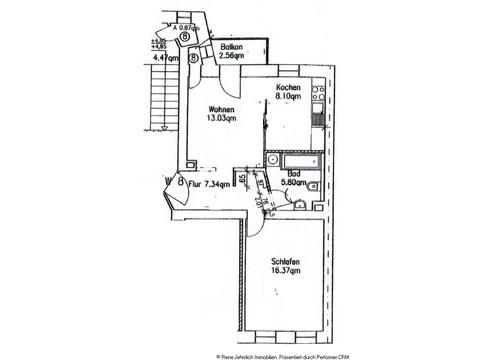
Diese charmante 2-Raum-Wohnung im 2. Obergeschoss eines denkmalgeschützten Mehrfamilienhauses, verbindet eine angenehme Wohnatmosphäre mit einem durchdachten Grundriss und einem ruhigen Wohnumfeld. Auf ca. 52 m² Wohnfläche bietet sie ein Zuhause, das sich ideal für Singles oder Paare.

Das Herzstück der Wohnung ist das helle Wohnzimmer mit offener Küchenzone. Große Fenster sorgen für viel Tageslicht und schaffen eine freundliche, einladende Wohnatmosphäre. Hier entsteht ein moderner Wohnbereich, in dem Kochen, Essen und Entspannen harmonisch miteinander verbunden sind.

Ein besonderes Highlight ist der Balkon mit Blick in den grünen Innenhof. Die ruhige Lage zum Garten hin bietet einen angenehmen Rückzugsort, perfekt für den ersten Kaffee am Morgen oder entspannte Stunden am Abend.

Das separate Schlafzimmer bietet ausreichend Platz für ein großes Bett sowie einen Kleiderschrank und sorgt für eine ruhige, private Rückzugsmöglichkeit.

Das Badezimmer verfügt über eine Badewanne und bietet alles für den täglichen Komfort.

Zusätzlichen Stauraum bietet ein praktischer Abstellraum auf halber Treppe, der ideal für Haushaltsgeräte oder Vorräte genutzt werden kann. Ein eigener Kellerraum gehört ebenfalls zur Wohnung.

Der grüne Innenhof mit Gartenflächen unterstreicht die angenehme Wohnqualität des Hauses und schafft eine ruhige Atmosphäre mitten in der Stadt.

Eine Wohnung, die durch Helligkeit, einen funktionalen Grundriss und einen schönen Balkon mit Grünblick überzeugt.
Lagebeschreibung
Die Horst-Menzel-Straße befindet sich im beliebten Chemnitzer Stadtteil Kaßberg, einer ruhigen und gewachsenen Wohnlage, die besonders bei Familien, Paaren und ruhesuchenden Eigennutzern sehr geschätzt wird.

Das Wohnumfeld ist geprägt von gepflegten Mehrfamilienhäusern, kleineren Wohnanlagen sowie viel Grün, was für eine angenehme und entspannte Wohnatmosphäre sorgt.

Trotz der ruhigen Lage profitieren Bewohner von einer sehr guten Infrastruktur. Einkaufsmöglichkeiten für den täglichen Bedarf, Supermärkte, Bäckereien sowie Ärzte und Apotheken sind in wenigen Minuten erreichbar. Auch Kindergärten und Schulen befinden sich im näheren Umfeld, was den Standort besonders attraktiv für Familien macht.

Die Anbindung an den öffentlichen Nahverkehr ist hervorragend. Straßenbahn- und Bushaltestellen sind fußläufig erreichbar und ermöglichen eine schnelle Verbindung in die Chemnitzer Innenstadt, zum Hauptbahnhof sowie zu weiteren Stadtteilen. Dadurch bleibt man auch ohne Auto flexibel und mobil.

Für Freizeit und Erholung bietet die Umgebung zahlreiche Möglichkeiten. Mehrere Grünflächen, Spazierwege sowie nahegelegene Parkanlagen laden zu entspannten Spaziergängen, sportlichen Aktivitäten oder einfach zum Abschalten im Grünen ein. Auch verschiedene Sportvereine und Freizeitangebote befinden sich in der Umgebung.

Über die nahegelegenen Hauptverkehrsstraßen sind zudem die Bundesstraße B173 sowie die Autobahn A72 schnell erreichbar, wodurch auch Pendler eine gute Anbindung in Richtung Zwickau, Leipzig oder Dresden genießen.
Sonstiges
Baujahr: 1903
Heizungsart: Zentralheizung
Befeuerung/Energieträger: Gas
Energieausweistyp: Verbrauchsausweis
Energiekennwert: 111 kWh/(m²*a)
Energieeffizienzklasse: D

Um eine schnelle und unkomplizierte Terminvereinbarung zu treffen, können Sie mich gern auch werktags unter folgender Rufnummer von 9:00 Uhr bis 18:00 erreichen.

Tel.: 8888 8 888 8888
Funk: 8888 8 88 88 888

Sie können natürlich auch auf unserer Homepage sich über andere Angebote informieren.

888888888888888888888888888888888

PROVISIONSFREI