Privat & provisionsfrei: Wohnungen aus Portalen, Kleinanzeigen & Social Media kombiniert


Das inserieren direkt auf Flatbee ist immer 100% kostenlos

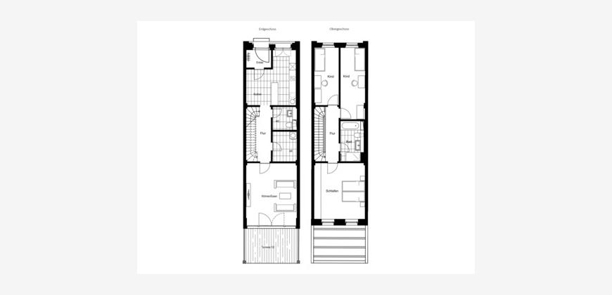
Haus - Karte anzeigen Fabrikstraße 25 04435 Schkeuditz (Kleinliebenau) Deutschland - 131 m2  

Kaltmiete € 1400

von Flatbee vor 3 Tagen gefunden | vor 1 Tag auf Aktivität geprüft

Warmmiete (Kaltmiete + NK) €  1800

Preis-Barometer: -11% günstiger als ähnliche Immobilien in gleicher Lage

-11%

premium_badge
Dies ist ein Flatbee Plus+ Inserat
premium_badge

Charmantes Reihenhaus in Wassernähe | Papierfabrik Schkeuditz | Terrasse | Stellplatz | Erstbezug


Beschreibung

Willkommen in der Papierfabrik Schkeuditz!

Entdecke dein neues Zuhause in einem charmanten, denkmalgeschützten Reihenhaus im Herzen von Schkeuditz in einem historischen Ensemble.

Diese frisch sanierte Immobilie bietet dir auf ca. 132 m² Wohnfläche ein großzügiges Wohnambiente mit gehobener Ausstattung. Das einladende offene Wohnkonzept umfasst vier Zimmer und eine moderne, offene Küche, die perfekt für gesellige Abende mit Freunden oder Familie geeignet ist.

Freue dich auf hochwertigen Wohnkomfort: Vom edlen Echtholzparkett mit Fußbodenheizung bis hin zu luxuriös ausgestatteten Badezimmern, die dir sowohl eine Dusche als auch eine Badewanne bieten. Entspanne auf deiner großen Terrasse und genieße die frische Luft.

Das historische Gebäude-Ensemble beherbergt außerdem gemeinschaftlich nutzbare Annehmlichkeiten wie eine Sauna und einen Fitnessbereich sowie einen Spielplatz für die Kleinen. Obendrauf gibt s einen Stellplatz im Freien für nur 50,00 € monatlich.

Bereit für den Einzug? Dein neues Zuhause ist ab sofort verfügbar!
Hol dir mehr Infos zu weiteren Wohnungen unter 888888888888888888888888888888 und erlebe Wohnkultur auf höchstem Niveau. Lass dir diese Chance nicht entgehen!
Ausstattung
- Historisches Gebäude-Ensemble
- Eigenes Haus mit großer Terrasse
- Hochwertig ausgestattete Bäder
- Bad mit Dusche und mit Wanne
- Gäste-WC
- Echtholzparkett und Fußbodenheizung
- Gas-Brennwerttherme und Luft-Wärmepumpe
- Gemeinschaftlich nutzbare Sauna und Fitnessbereich
- Gemeinschaftshof und Spielplatz
- Großer Abstellraum innerhalb des Hauses
- Stellplatz im Freien für 50,00 € /mtl.

- Weitere Wohnungen aus diesem Objekt finden Sie unter 888888888888888888888888888888
Lagebeschreibung
Schkeuditz – Kleinstadtflair mit Großstadtanschluss

Eingebettet zwischen den pulsierenden Städten Leipzig und Halle liegt Schkeuditz – eine charmante Stadt mit rund 18.000 Einwohnern. Bekannt durch den nahegelegenen Flughafen Leipzig/Halle, ist Schkeuditz längst nicht nur Verkehrsknotenpunkt, sondern ein attraktiver Wohnort mit hoher Lebensqualität.

Dank der hervorragenden Verkehrsanbindung über die Autobahnen A9 und A14 sowie die Bundesstraßen B6 und B186, erreichen Sie in kürzester Zeit die Zentren der umliegenden Städte. Auch per Bahn und Straßenbahn ist Schkeuditz bestens vernetzt – ideal für Pendler und Berufstätige. In knapp 15 Minuten erreicht man das Zentrum von Leipzig

Doch nicht nur Mobilität wird hier großgeschrieben: Wer Natur und Erholung sucht, findet sie direkt vor der Haustür. Der Auenwald lädt zu ausgedehnten Spaziergängen oder Fahrradtouren ein, während der Schladitzer See im Norden von Schkeuditz mit Badestellen, Wassersport und Sandstränden überzeugt – perfekt für aktive Sommertage oder entspannte Stunden im Freien.

Kulturell und historisch hat Schkeuditz einiges zu bieten. Die Stadtkirche St. Albanus, zahlreiche Denkmäler sowie ein Rittergut in der Nähe zeugen von einer bewegten Geschichte. Gleichzeitig entwickelt sich die Stadt stetig weiter: Neue Wohngebiete, moderne Freizeiteinrichtungen und ein wachsendes Vereinsleben bringen frischen Wind in die traditionsreiche Gemeinde.

Familienfreundlich, seniorengerecht und offen für Neues – Schkeuditz punktet mit einem breiten Angebot an Kindertagesstätten, Schulen, medizinischer Versorgung und Einkaufsmöglichkeiten. Zwei Krankenhäuser, vielfältige Betreuungs- und Bildungsangebote sowie ein reges Vereins- und Kulturleben machen den Ort besonders lebenswert.

Ob Sie den Alltag entschleunigen oder neue Wurzeln schlagen möchten – in Schkeuditz finden Sie den idealen Ort zum Leben, Arbeiten und Wohlfühlen.

PROVISIONSFREI