Privat & provisionsfrei: Wohnungen aus Portalen, Kleinanzeigen & Social Media kombiniert


Das inserieren direkt auf Flatbee ist immer 100% kostenlos

Wohnung - Karte anzeigen Wurzner Straße 156A 04318 Leipzig (Sellerhausen) Deutschland - 183 m2  

Kaltmiete € 2112

von Flatbee vor 4 Stunden gefunden | vor 4 Stunden auf Aktivität geprüft

Warmmiete (Kaltmiete + NK) €  2757

Preis-Barometer:

0%

premium_badge
Dies ist ein Flatbee Plus+ Inserat
premium_badge

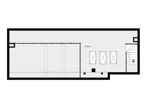
Dachgeschosstraum mit Galerie & Balkon | 2 Bäder | Aufzug | Dielenboden | Stellplatz mgl.


Beschreibung

Diese großzügige 5-Zimmer-Wohnung mit ca. 183 m² Wohnfläche überzeugt durch ihren optimalen Zuschnitt und eine offene Galerie, die ein besonderes Raumgefühl schafft. Dank der durchdachten Aufteilung bieten sich vielfältige Nutzungsmöglichkeiten – Wohnen und Arbeiten lassen sich hier hervorragend miteinander verbinden.

Die Wohnung verfügt über zwei moderne Bäder, eines ausgestattet mit Dusche, das andere mit Badewanne. Die vorhandenen Holzböden (Dielen) werden erneuert und verleihen den Räumen eine warme, hochwertige Atmosphäre. Fenster und Türen sowie der gesamte Sanitärbereich wurden umfassend saniert und sind mit modernen Armaturen und stilvollen Fliesen ausgestattet.

Im Rahmen weiterer Modernisierungsmaßnahmen des Objektes wurden unter anderem die Wärmedämmung optimiert, ein indirektes Belüftungssystem eingebaut sowie eine neue Heizungsanlage installiert. Ein Aufzug im Haus sorgt für zusätzlichen Komfort.

Das attraktive Gebäude besticht zudem durch einen ansprechend gestalteten Innenhof, der zum Verweilen einlädt. PKW-Stellplätze können bei Bedarf separat im benachbarten Innenhof angemietet werden.

Haben wir Ihr Interesse geweckt? Dann rufen Sie uns gerne unter 8888 888 88888 an.
Ausstattung
- Hochwertiges Echtholz-Dielenparkett
- Badezimmer mit Wanne
- Gäste- WC mit Dusche
- Deckenschallschutz
- Moderne Fenster & Wärmedämmung
- Süd-Balkon mit Ausrichtung zum Innenhof
- Aufzug
- Keller
- Stellplatz im Freien anmietbar für 80 EUR/Monat
Lagebeschreibung
Östlich der Leipziger City findet man sich im vergleichsweise grünen Stadtteil Sellerhausen-Stünz wieder.

Alltägliche Besorgungen lassen sich problemlos im Viertel tätigen: Neben Kindertagesstätten, Schulen, zahlreichen Arztniederlassungen und gastronomischen Einrichtungen befinden sich in Sellerhausen-Stünz diverse Einkaufsmöglichkeiten und tragen zum Lebenskomfort der Bewohner bei.
Die lebhafte Eisenbahnstraße mit all ihren Vorzügen ist zudem nicht weit entfernt.

Neben dem Stünzer Park mit seinen anliegenden Kleingartenanlagen freut sich auch die im 19. Jahrhundert erbaute sowie unter Denkmalschutz stehende Emmauskirche auf Ihren Besuch!

Das Bus-, Straßenbahn- und S-Bahnnetz sowie die Bundesstraßen B 6 und B 87 gewährleisten hervorragende Anbindungen an die Innenstadt sowie das restliche Leipziger Umland.Der Stadtteil Reudnitz mit dem Ortsteil Thonberg liegt im Südosten Leipzigs.

Hier pulsiert das Leben. Viele Studenten leben in diesem zentrumsnahen Mischgebiet, denn die Universität ist nicht weit entfernt.

Zahlreiche Einkaufsmöglichkeiten zur Deckung des täglichen Bedarfs und insbesonders das im Jahr 2009 gebaute Reudnitz-Center sowie Ärztehäuser und Schulen prägen das individuelle Stadtbild.

Aber auch mehrere Grünanlagen laden zum Entspannen ein: der Stünzer Park, das Stötteritzer Wäldchen und der Prager Park bilden Oasen der Erholung.

PROVISIONSFREI