Privat & provisionsfrei: Wohnungen aus Portalen, Kleinanzeigen & Social Media kombiniert


Das inserieren direkt auf Flatbee ist immer 100% kostenlos

Haus - 41812 Erkelenz - 245 m2  

Kaltmiete € 1700

| vor 3 Stunden auf Aktivität geprüft

Warmmiete (Kaltmiete + NK) €  1900

Preis-Barometer: -23% günstiger als ähnliche Immobilien in gleicher Lage

-23%

premium_badge
Dies ist ein Flatbee Plus+ Inserat
premium_badge

Exklusives 2-Familienhaus im Zentrum von Erkelenz – Flexibles Wohnen auf 3 Ebenen


Beschreibung



Zu vermieten ist ein großzügiges 2-Familienhaus aus dem Jahr 1955, das 2011 umfassend modernisiert wurde und heute zeitgemäßen Wohnkomfort auf rund 245 m² Wohnfläche bietet. Das Haus erstreckt sich über drei Ebenen und verfügt über insgesamt acht Zimmer, die flexible Nutzungsmöglichkeiten für Familien, Mehrgenerationenwohnen oder die Kombination von Wohnen und Arbeiten eröffnen.



Das Erdgeschoss empfängt Sie mit einem hellen, einladenden Wohnzimmer, einem großzügigen Schlafzimmer, einer funktional geschnittenen Küche und einem Tageslichtbad mit Dusche. Im ersten Obergeschoss setzt sich das familienfreundliche Raumkonzept fort: Ein harmonisch geschnittenes Wohnzimmer, zwei flexibel nutzbare Schlafzimmer, eine voll ausgestattete Küche mit direktem Zugang zur Dachterrasse sowie ein Tageslichtbad mit Dusche schaffen ein komfortables Wohnumfeld.



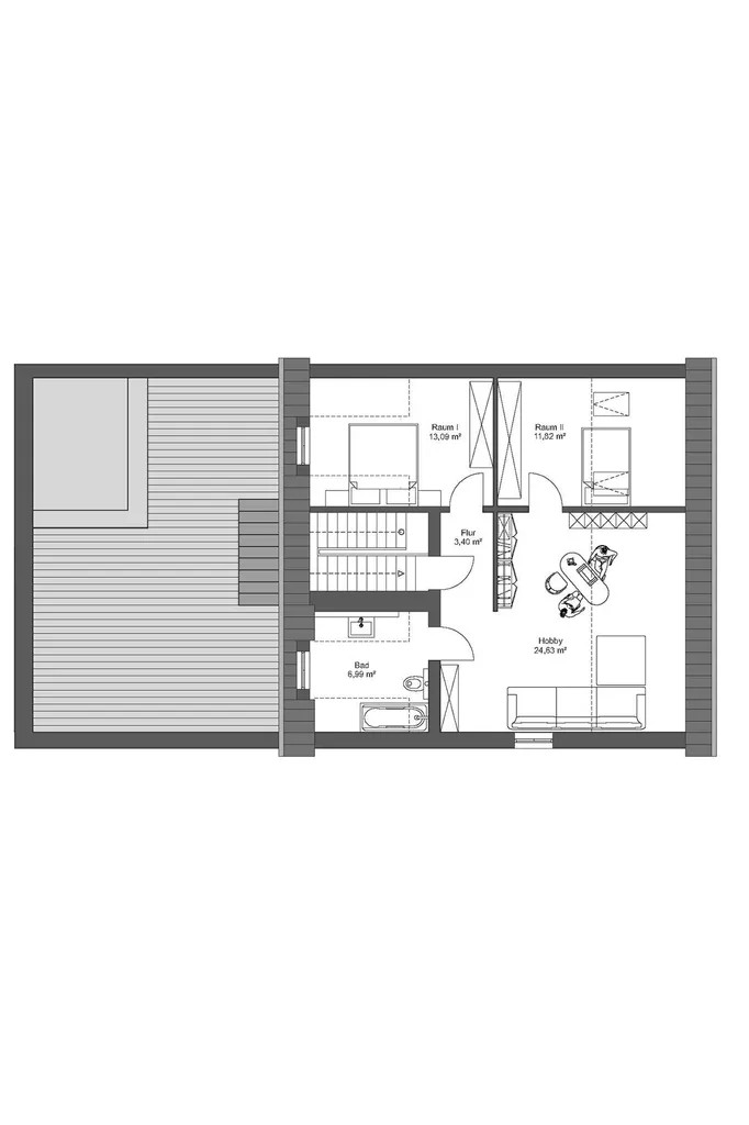
Das Dachgeschoss ist ideal für Kinder, Gäste oder kreative Nutzungsideen: Zwei helle Zimmer, ein offener Hobby- und Wohnbereich sowie ein großzügiges Tageslichtbad mit Badewanne bieten Rückzugs- und Entfaltungsmöglichkeiten.



Das Haus liegt auf einem 394 m² großen Grundstück, das gemeinschaftlich mit einem renommierten portugiesischen Restaurant genutzt wird, und besticht durch sein charmantes Umfeld.



Dieses Objekt vereint großzügige Raumaufteilung, flexible Nutzungsmöglichkeiten und gepflegten Wohnkomfort und bietet damit ein seltenes Mietangebot für anspruchsvolle Familien oder Interessenten, die ein vielseitiges, großzügiges Zuhause suchen.


Ausstattungsbeschreibung


Objektdaten

Baujahr: 1955

Modernisierung: 2011

Grundstücksgröße: 394 m² (gemeinschaftliche Nutzung mit einem renommierten portugiesischen Restaurant)

Wohnfläche: ca. 245 m²

Zimmer: 8 Zimmer auf 3 Ebenen



Nutzungsprofil: Ideal für Familien, Mehrgenerationenwohnen oder die Kombination aus Wohnen & Arbeiten



Wohnbereiche im Detail

Erdgeschoss – Komfortables Wohnen auf einer Ebene

Lichtdurchflutetes Wohnzimmer mit angenehmer Raumwirkung

Großzügiges Schlafzimmer mit optimalem Rückzugscharakter

Separate, funktional geschnittene Küche

Badezimmer mit Dusche



1. Obergeschoss – Familienfreundliche Wohnatmosphäre

Großzügiges Wohnzimmer mit harmonischem Grundriss

Zwei Schlafzimmer, variabel nutzbar

Voll ausgestattete Küche mit direktem Zugang zur Dachterrasse – perfekt für entspannte Momente im Freien

Tageslichtbad mit Dusche



Dachgeschoss – Attraktiver Rückzugsort für Kinder & Kreative

Zwei helle Zimmer, ideal als Kinder-, Gäste- oder Hobbyräume

Offener Hobby-/Wohnbereich mit gemütlicher Atmosphäre

Großzügiges Tageslichtbad mit Badewanne – ideal für entspannte Auszeiten



Besondere Vorzüge des Hauses

Modernisierung 2011 sorgt für zeitgemäßen Wohnkomfort

Attraktive Lage mit charmantem, kulinarischem Umfeld



Perfekte Raumstruktur für Familien, die Wert auf Platz, Vielseitigkeit und Komfort legen


Lagebeschreibung


Die Immobilie überzeugt durch ihre zentrale Lage in Erkelenz mit unmittelbarer Nähe zum Bahnhof, wodurch eine ausgezeichnete Anbindung an den öffentlichen Nahverkehr und eine schnelle Erreichbarkeit der umliegenden Städte gewährleistet ist. Das Stadtzentrum ist bequem erreichbar, und sämtliche Einrichtungen des täglichen Bedarfs – darunter Supermärkte, Apotheken, Schulen und Kindergärten – befinden sich in fußläufiger Entfernung.



Die Umgebung besticht durch eine ausgewogene Verbindung von urbaner Infrastruktur und ruhigen Rückzugsbereichen. Pendler profitieren von idealen Zugverbindungen nach Mönchengladbach, Düsseldorf oder Köln, während das vielfältige gastronomische Angebot und die Nähe zu kulturellen Einrichtungen und Freizeitmöglichkeiten die Attraktivität des Standortes zusätzlich erhöhen.



Diese Lage vereint sämtliche Vorteile eines zentralen Wohnumfeldes mit hoher Lebensqualität und macht die Immobilie sowohl für Familien als auch für Berufspendler besonders interessant.


PROVISIONSFREI