Privat & provisionsfrei: Wohnungen aus Portalen, Kleinanzeigen & Social Media kombiniert


Das inserieren direkt auf Flatbee ist immer 100% kostenlos

WG-Zimmer - Walramstraße 2, 65183 Wiesbaden – Hessen - 76 m2  

Kaltmiete € 1265

von Flatbee vor 1 Tag gefunden | vor 3 Stunden auf Aktivität geprüft

Preis-Barometer: +39% teurer als ähnliche Immobilien in gleicher Lage

+39%

premium_badge
Dies ist ein Flatbee Plus+ Inserat
premium_badge

Erstbezug! Ruhige 4-Zimmer-Maisonette mit Sonnenbalkon (WG-tauglich)


Beschreibung

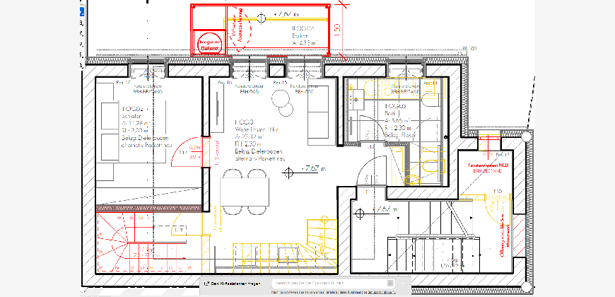
Wohnküche (ca. 23 m²) mit Balkon (6 m²) und Küchenzeile mit Geschirrspülmaschine, Herd, Dunstabzugshaube und Kühl- und Gefrierkombination
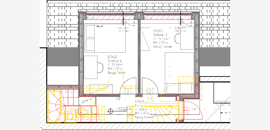
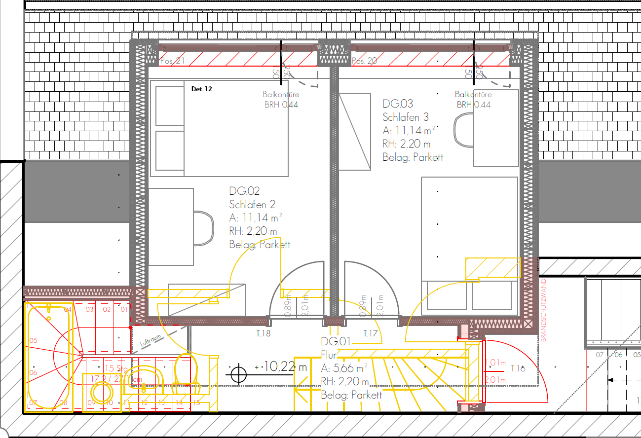
Schlafzimm­er 1 (ca. 12 m²) - hier ist der Einbau eines Hochbetts möglich
Tageslichtduschbad (ca. 6 m²)
Flur 2. OG und interne Treppe mit Abstellmöglichkeit darunter (ca. 3 m²)
Schlafzimmer 2 (ca. 13 m²)
Schlafzimmer 3 (ca. 12 m²)
Flur 3. OG mit separatem Ausgang ins Treppenhaus (ca. 6 m²)


Weitere Ausstattung: Echtholzparkett Eiche, Fußbodenheizung, elektrische Lüftung mit Wärmerückgewinnung, Warmwasser durch elektrische Durchlauferhitzer, interne Netzwerkverkabelung.

Die Walramstraße ist eine ruhige Seitenstraße der Bleichstraße. Mit wenigen Schritten sind Sie mitten im prallen Leben des Wiesbadener Westends. Einkaufsmöglichkeiten und Restaurants finden Sie hier zuhauf. Die Bushaltestelle in der Bleichstraße erreichen Sie in einer Minute. Von dort gibt es regelmäßige Anschlüsse zum Bahnhof.

Mindestmietdauer 2 Jahre. Es wird eine Staffelmiete mit 3% jährlicher Steigerung der Kaltmiete vereinbart. Die Wohnung wird über Wärmecontracting mit Nahwärme beliefert (in den Heizkosten enthalten). Die Wärmeerzeugung erfolgt über eine Luft-Wärmepumpe unterstützt durch eine Photovoltaikanlage.

PROVISIONSFREI