Privat & provisionsfrei: Wohnungen aus Portalen, Kleinanzeigen & Social Media kombiniert


Das inserieren direkt auf Flatbee ist immer 100% kostenlos

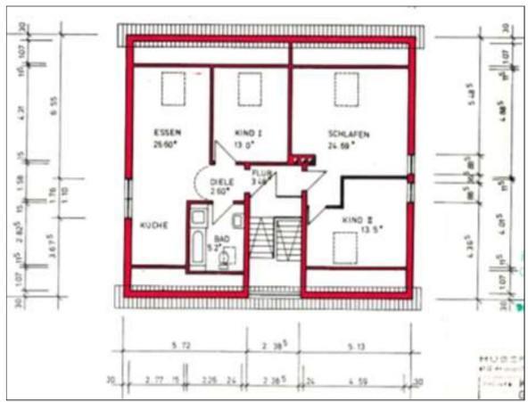
Wohnung - Gernotstraße 6, 64579 Gernsheim – Hessen - 86 m2  

Kaltmiete € 1250

von Flatbee vor 8 Stunden gefunden | vor 1 Stunde auf Aktivität geprüft

Preis-Barometer: +12% teurer als ähnliche Immobilien in gleicher Lage

+12%

premium_badge
Dies ist ein Flatbee Plus+ Inserat
premium_badge

Erstbezug nach Sanierung: 4-ZKB DG-Wohnung mit Gartenmitnutzung, Stellplatz, Wärmepumpe & Klima


Beschreibung

Die Wohnung befindet sich in einem sehr gepflegten und modernisierten Zustand und wurde umfassend saniert.


Alle Wohnräume sind mit modernen, strapazierfähigen Bodenbelägen in zeitgemäßer Holzoptik ausgestattet, die eine freundliche und hochwertige Wohnatmosphäre schaffen. Die Wände sind hell gestaltet und sorgen in Kombination mit den Dachfenstern für ein lichtdurchflutetes Gesamtbild.


Das Badezimmer ist funktional und gepflegt ausgestattet. Es verfügt über eine Badewanne mit integrierter Duschmöglichkeit, einen modernen Waschtisch sowie zeitlose Fliesen. Durch die vorhandenen Dachfenster wirkt auch dieser Bereich hell und angenehm.


Ein besonderes Ausstattungsmerkmal ist das moderne Heiz- und Kühlsystem. In mehreren Räumen sind Klimageräte installiert, die sowohl zum Kühlen im Sommer als auch zum Heizen genutzt werden können (Luft-Luft-Wärmepumpensystem).­ Dies ermöglicht eine effiziente und flexible Temperierung der Wohnung sowie ein angenehmes Raumklima zu jeder Jahreszeit.


Die Dachgeschosslage sorgt zusätzlich für eine ruhige Wohnatmosphäre und ein hohes Maß an Privatsphäre.


Zur Wohnung gehört ein eigener Kellerraum, der zusätzlichen Stauraum bietet. Ein Stellplatz steht ebenfalls zur Verfügung. Zudem kann der Garten gemeinschaftlich mitgenutzt werden.


Die Wohnung wird ohne Einbauküche vermietet, wodurch individuelle Gestaltungsmöglichkeiten bestehen.


Insgesamt handelt es sich um eine moderne, gepflegte und funktionale Ausstattung, die den Anforderungen an zeitgemäßes Wohnen in ruhiger Lage in vollem Umfang gerecht wird.

Die Wohnung befindet sich in ruhiger und gewachsener Wohnlage in der Gernotstraße in Gernsheim. Das Umfeld ist geprägt von gepflegter Wohnbebauung mit Ein- und kleineren Mehrfamilienhäusern sowie einem hohen Anteil an Grünflächen, was zu einer angenehmen und familienfreundlichen Wohnatmosphäre beiträgt.


Gernsheim liegt im südlichen Hessen direkt am Rhein und gehört zur wirtschaftsstarken Metropolregion Rhein-Main. Durch die gute Anbindung an die umliegenden Städte ist der Standort besonders attraktiv für Berufspendler.


Die Verkehrsanbindung ist sehr gut: Die Autobahn A67 ist in wenigen Minuten erreichbar und ermöglicht eine schnelle Verbindung in Richtung Darmstadt, Frankfurt am Main und Mannheim. Der Bahnhof Gernsheim bietet regelmäßige Regionalverbindungen, sodass auch eine gute Anbindung an den öffentlichen Nahverkehr gegeben ist. Eine Bushaltestelle befindet sich in fußläufiger Entfernung.


Die Nahversorgung ist ebenfalls gut: Einkaufsmöglichkeiten, Bäckereien, Ärzte, Apotheken sowie weitere Einrichtungen des täglichen Bedarfs sind in kurzer Zeit erreichbar. Schulen und Kindergärten befinden sich ebenfalls in der näheren Umgebung und machen die Lage besonders attraktiv für Familien.


Zahlreiche Freizeit- und Erholungsmöglichkeiten befinden sich in unmittelbarer Nähe. Der Rhein, der Badesee Gernsheim sowie umliegende Grünflächen und Naturschutzgebiete bieten vielfältige Möglichkeiten zur Erholung, für sportliche Aktivitäten oder Spaziergänge.


Die Kombination aus ruhiger Wohnlage, guter Infrastruktur sowie der Nähe zur Natur macht diesen Standort besonders attraktiv und bietet eine hohe Lebensqualität.

Besichtigungen sind nach vorheriger Terminvereinbarung möglich.

PROVISIONSFREI