Privat & provisionsfrei: Wohnungen aus Portalen, Kleinanzeigen & Social Media kombiniert


Das inserieren direkt auf Flatbee ist immer 100% kostenlos

Haus - 39291 Sachsen-Anhalt - Lostau - 126 m2  

Kaltmiete € 1711

| vor 220 Tagen auf Aktivität geprüft

Preis-Barometer: +13% teurer als ähnliche Immobilien in gleicher Lage

+13%

premium_badge
Dies ist ein Flatbee Plus+ Inserat
premium_badge

Erste Besichtigungen ab Dezember: Doppelhaushälfte in Lostau (5b)


Beschreibung




88888888888 jsx88888888888 jsx88888888888 kds >

Objektbeschreibung


Neubauprojekt in Lostau - es entstehen zum Frühjahr 2025 zwei Mehrfamilienhäuser mit je 8 Einheiten und 6 Doppelhaushälften.


Die Doppelhaushälfte Külzauer Weg 5b hat eine Grundstücksfläche von 228 m².


Lage


Lostau ist eine Ortschaft der Gemeinde Möser im Landkreis Jerichower Land in Sachsen-Anhalt. Das Dorf Lostau liegt im Einzugsbereich der Landeshauptstadt Magdeburg, die sowohl über die Autobahn A2 als auch über die Bundesstraße 1 nach 15 Kilometern erreicht wird. Die Kreisstadt Burg ist etwa gleich weit entfernt. Westlich des Ortes fließt die Elbe, deren Altarme bis unmittelbar an die Siedlung Alt Lostau heranreichen.


In Lostau finden Sie neben einem Nahversorger, Bäcker, auch eine Apotheke, eine Allgemein- und Zahnarztpraxis, Kindertagesstätte, Altenpflegeheim, Floristen, Frisör und Gastronomie.


Ausstattung




  • Decken und Wände: Vliestapete weiß




  • Fußbodenheizung in allen Räumen




  • pflegeleichter Design-Bodenbelag in Holzoptik




  • Bad mit Fenster, Fliesenboden (anthrazit), Walk-in-Dusche (ebenerdig), Glaskabine, Badewanne, Waschtisch, Spiegel, WC, Handtuchheizkörper




  • zusätzliches Gäste-WC im Erdgeschoss




  • großzügiger Wohnbereich mit offener Küche




  • Stellplatz für Waschmaschine/Trockner im Hauswirtschaftsraum




  • Terrasse mit Gartengrundstück (vom Wohnzimmer aus begehbar)




  • 1 Garage (mit elektrischem Sektionaltor) und 1 PKW-Stellplatz vor Garage - Wallbox an der Garage




  • alle Fenster werden mit elektrischen Rollläden ausgestattet




  • Lichtkuppel / Oberlicht im Flur im Obergeschoss als Dachausstieg




  • Haustür aus Aluminium, anthrazit




Versorgung mit schnellem Internet, Telefonie und Fernsehen durch den regionalen Anbieter.


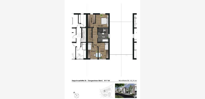
Aufteilung der Doppelhaushälfte:


Erdgeschoss: Diele, Gäste-WC, Hauswirtschaftsraum, Wohnzimmer / Küche, Zugang zur Garage vom HWR, Hausanschlussraum (von Garage und Garten erreichbar)


Obergeschoss: Flur, Schlafzimmer mit Ankleide, 2 Kinderzimmer, Bad mit Wanne und Dusche


Die monatliche Miete für die Garage und den PKW-Stellplatz vor der Garage in Höhe von 125,00 € ist bereits in der angegebenen Warmmiete enthalten.


Sonstiges


Die Doppelhaushälften verfügen über eine sehr moderne energetische Ausstattung mit PV-Anlage auf dem Dach, Lüftungsanlage und eigener Wärmepumpe. Die Einheiten werden – d i r e k t – mit Naturstrom versorgt. Dafür wird zur kalkulierten Betriebskostenvorauszahlung noch eine pauschale Stromkostenvorauszahlung zusätzlich veranschlagt.


Die genaue Höhe der Stromkostenvorauszahlung wird aktuell noch vom Betreiber kalkuliert. Es erfolgt eine jährliche Abrechnung nach Stromverbrauch.


Die Wohnanlage entsteht nach KFW-Standard 40+.


Die Doppelhaushälften sind baugleich (teilweise spiegelverkehrt). Die äußeren Doppelhaushälften (5a und 5f) haben ein größeres Grundstück.


Die Gesamtmiete in Höhe von 1.837,75 € setzt sich wie folgt zusammen:


1.710,88 € Kaltmiete + 126,87 € Betriebskostenvorauszahlung


Hinzu kommt noch die Stromkostenvorauszahlung.


Besichtigungen ab Dezember möglich (nach vorheriger Terminabsprache und Anmeldung)! Kommen Sie gern auf uns zu.






PROVISIONSFREI